北京农村26万新中式别墅,正房厢房连通,阳光房大庭院真是享受

文章插图
北京农村26万新中式别墅,正房厢房连通,阳光房大庭院真是享受
项目名称:北京通州姜家新中式别墅
项目地点:北京市通州区
建筑面积:166.3㎡
基地面积:299㎡
建筑尺寸:12m×20m
占地面积:166.3㎡
图纸编号:705
户型概况:3室2厅1卫1厨
建筑结构:砖混结构
主创建筑师:樊文霞
土建参考造价:26万元(不包含室内装修费用)
项目概况

文章插图
北京农村26万新中式别墅,正房厢房连通,阳光房大庭院真是享受
△总平面示意图
项目位于北京,基地东、西两侧与邻居家住宅紧邻,南侧为村内道路,北侧是一片空地 。
业主对图纸编号567的项目极为喜欢,根据基地情况,建筑最终选择新中式风格 。
图纸设计

文章插图
北京农村26万新中式别墅,正房厢房连通,阳光房大庭院真是享受
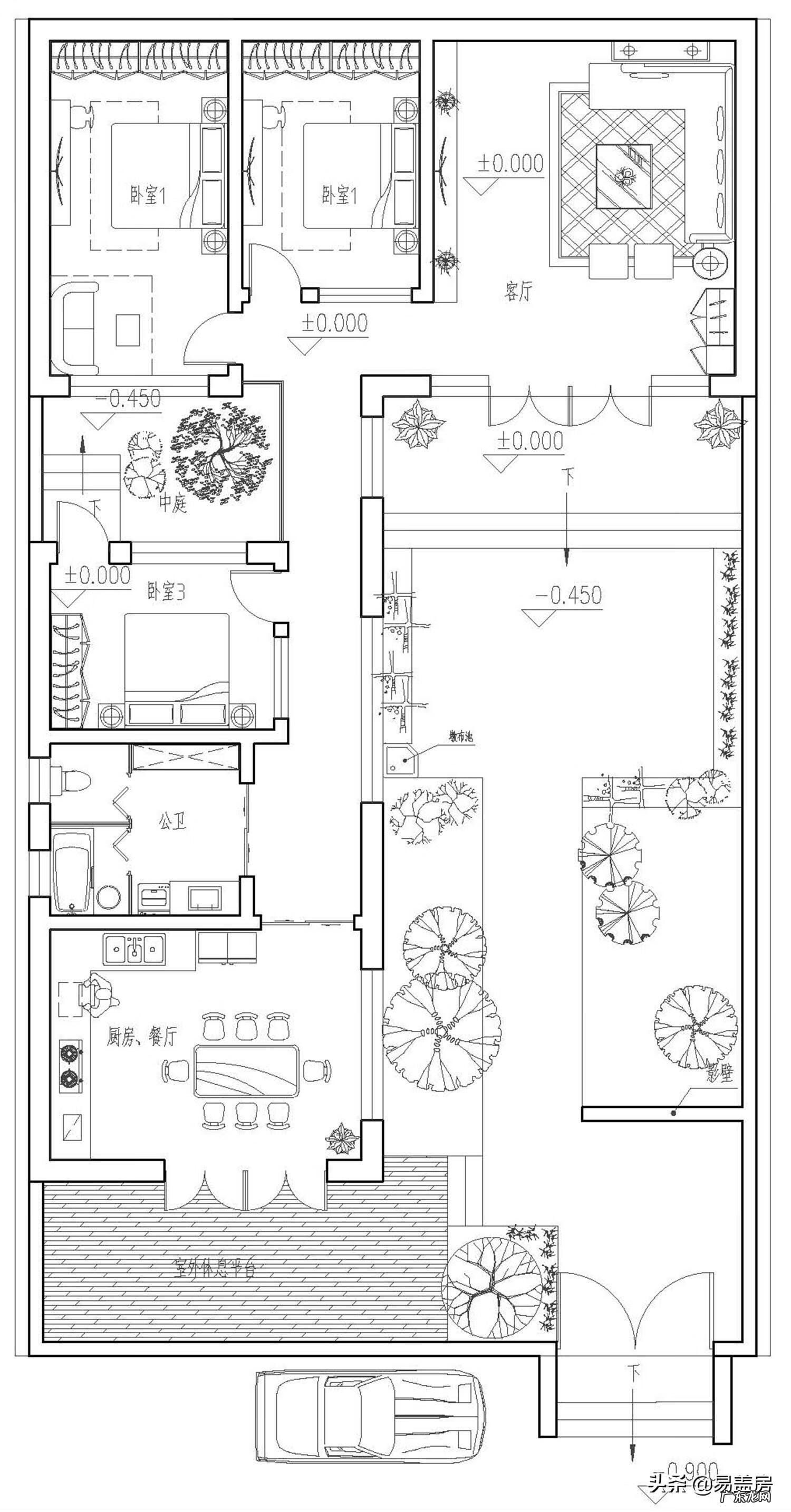
△一层平面图
平面分为正房和厢房两个部分,两者通过廊道连接 。正房客厅位于东侧,面积较大,与庭院正对保证了室内景观极佳 。两间卧室相邻,与厢房间隔一个中庭 。
西厢房南侧厨房和餐厅的空间相对开放,可与室外平台直接连通 。天气较好的时光或用餐人数较多时,可将此处空间利用 。
公卫十分豪华,采用干湿分离、洁污分离的设计,方便日常打理 。同时廊道连接使得夜里使用也较为方便 。
造型设计

文章插图
北京农村26万新中式别墅,正房厢房连通,阳光房大庭院真是享受
△鸟瞰图
建筑整体为新中式风格,配色以及建材选择上都较为传统,白墙灰瓦的搭配将淡雅和简约的效果放大,使得建筑整体更为协调 。

文章插图
北京农村26万新中式别墅,正房厢房连通,阳光房大庭院真是享受
△鸟瞰图
西厢房采用平屋顶,与正房双坡屋顶存在形式和高度上的差异 。同时厢房屋顶可作为晾晒谷物的场所,增加庭院使用面积 。

文章插图
北京农村26万新中式别墅,正房厢房连通,阳光房大庭院真是享受
△鸟瞰图
院门采用门楼形式增加威严和气势,门前台阶配合大气门楼,在入院位置就抬高了建筑,使得建筑在外看来更具气势 。为了保护隐私性,院门后方影壁采用实体样式,“福”气入门即得 。

文章插图
北京农村26万新中式别墅,正房厢房连通,阳光房大庭院真是享受
△庭院鸟瞰图

文章插图
北京农村26万新中式别墅,正房厢房连通,阳光房大庭院真是享受
△庭院效果图
庭院内高大树木较少,以低矮灌木为主 。客厅与庭院相接平台上方增加玻璃雨棚,既不会影响采光,也能与木质平台形成呼应 。

文章插图
北京农村26万新中式别墅,正房厢房连通,阳光房大庭院真是享受
- 如何疏通洗手池 阳光房洗手池尺寸
- 一进门是茶室风水 西边阳光房做茶室风水
- 养鸡房怎么搭建最省钱 鸡舍正房风水
- 自家露台封闭阳光房是否算违建
- 家里厨房连着客厅风水好不好
- 正房前面盖小房子好吗 前院正中建有小房风水好不好
- 各行业企业文化的宣传口号
- 年会口号文案 年会策划主题口号
- 公司上墙标语 企业上墙的标语
- 阳光房的效果图 阳光房风水效果图大全集
特别声明:本站内容均来自网友提供或互联网,仅供参考,请勿用于商业和其他非法用途。如果侵犯了您的权益请与我们联系,我们将在24小时内删除。
