入住新房不久,6大败笔后悔莫及,鼓起勇气晒晒,大家别再犯

文章图片

文章图片

文章图片

文章图片

文章图片
新房是一个94平小四居 , 装的是现代简约风 , 整个装修花了差不多五个多月的时间 , 然后又通风了小半年 。 现在已经入住一个多月了 , 住进去后才慢慢发现新房装修有6个败笔 , 你说拆了重新搞吧 , 它们影响不是很大 , 而且花了钱自己有点舍不得 。 不拆吧 , 就是咋看咋不舒服 , 真的是让人心里难受 。 今天鼓起勇气 , 也给大家晒晒 , 希望通过我的分享 , 能让大家少犯点错 , 毕竟装好了再想改就难了!
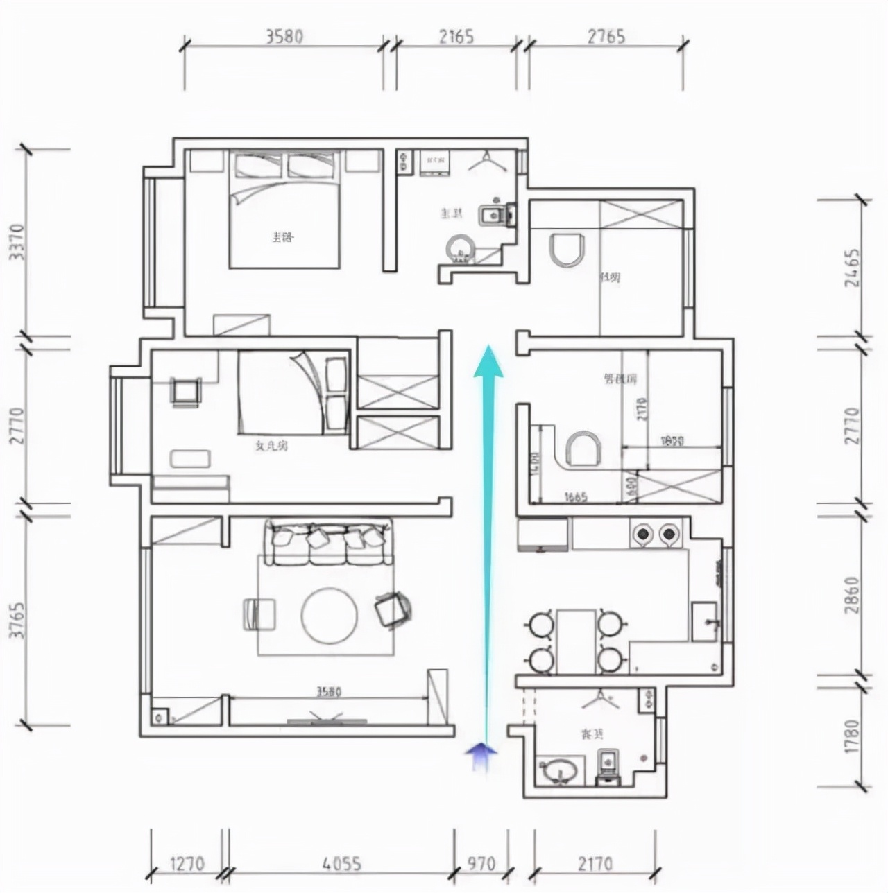
户型图
【入住新房不久,6大败笔后悔莫及,鼓起勇气晒晒,大家别再犯】这是我家的户型图 , 是不是很方正 , 虽然面积不是很大 , 但是也算是典型的四室两厅 , 全明通透户型 , 从一进家门起 , 就是一个比较长的过道 , 就像我箭头标出来的这样 , 没有独立的玄关 , 也是挺遗憾的了 。
所以只能是在一进门这里做了一个小的鞋柜 , 入住以后才发现 , 这个鞋柜真的是太小了 , 完全不够用 , 塞不下几双鞋子 , 里面就满了 。 这就是我家装修饿的第1个败笔 , 你说换个大点的鞋柜吧 , 又挡住开关了 , 这就是典型的装修前没设计好 , 将开关设计到别的地方 , 这里做一个大的通顶玄关鞋柜 , 还可以挂衣服 , 客厅的私密性还好 , 收纳空间也充足 。 所以大家在装修前 , 一定不要着急 , 多想想怎么设计好一些 , 方便后期入住使用 。
客厅
家里整体是现代简约风格 , 所以客厅装的也比较简单 , 重装饰轻装修么 , 墙壁全部刷了暖色墙漆 , 然后没有做什么造型 , 简单几幅装饰画来点缀 , 比较清爽漂亮 , 灰色的布艺沙发 , 看起来也比较温馨舒适 。
电视墙
电视墙全部贴的是这种深红色的菱形墙布 , 看起来还是比较耐看的 , 虽然简简单单的 , 远看还是比较大气的 。 而贴墙布比贴墙纸的好处在于 , 墙布是一个整体 , 贴出来没有接缝 , 更好看一些 , 而且质感也比较好 。 但是 , 第2个败笔马上就来了 , 那就是电视柜选择的真失误 , 空格子比较多 , 特别不耐脏 , 不经意间就落满一层灰 , 而且还不好打扫 , 就应该选择一个全封闭的 , 平常只需要打扫表面就行 。
餐厅
房子整体是一个东西通透 , 所以餐厅和客厅看起来是一个整体 , 中间是一个过道隔开 , 地面上铺的是灰色北欧风地板 , 漂亮又耐看 。 餐厅选的是一款黑色实木餐桌 , 然后顶部三盏充满金属质感的小吊灯 , 看起来还挺小资的 。
厨房
厨房的空间比较小 , 所以当初就做成了开放式的 , 这也是我家的第3大败笔 , 想着开放式厨房就配集成灶好一些 , 没想到一点都不实用 , 我们家做饭油烟比较大 , 然后开放式厨房 , 烟全跑客厅去了 , 而且冰箱上面那么一大截是空出来的 , 本来应该做吊柜的 , 现在特别容易落灰 。 这些问题也是在入住之后 , 才慢慢发现的 , 刚装好的时候 , 还蛮喜欢的 , 现在别提多糟心了 。
特别声明:本站内容均来自网友提供或互联网,仅供参考,请勿用于商业和其他非法用途。如果侵犯了您的权益请与我们联系,我们将在24小时内删除。
