89平米日式风装修案例 客餐厅一体化设计温馨自然

文章图片

文章图片

文章图片
日式风装饰采用清新原木配饰 , 整体空间清新更温馨 , 实属治愈感家居!喜欢这种风格的小伙伴 , 下面南京圣都装饰的这套89平米日式风装修案例就是个很好的参考 , 一起来看看吧!
项目地址:林景尊园1栋
户型:平层/三室两厅
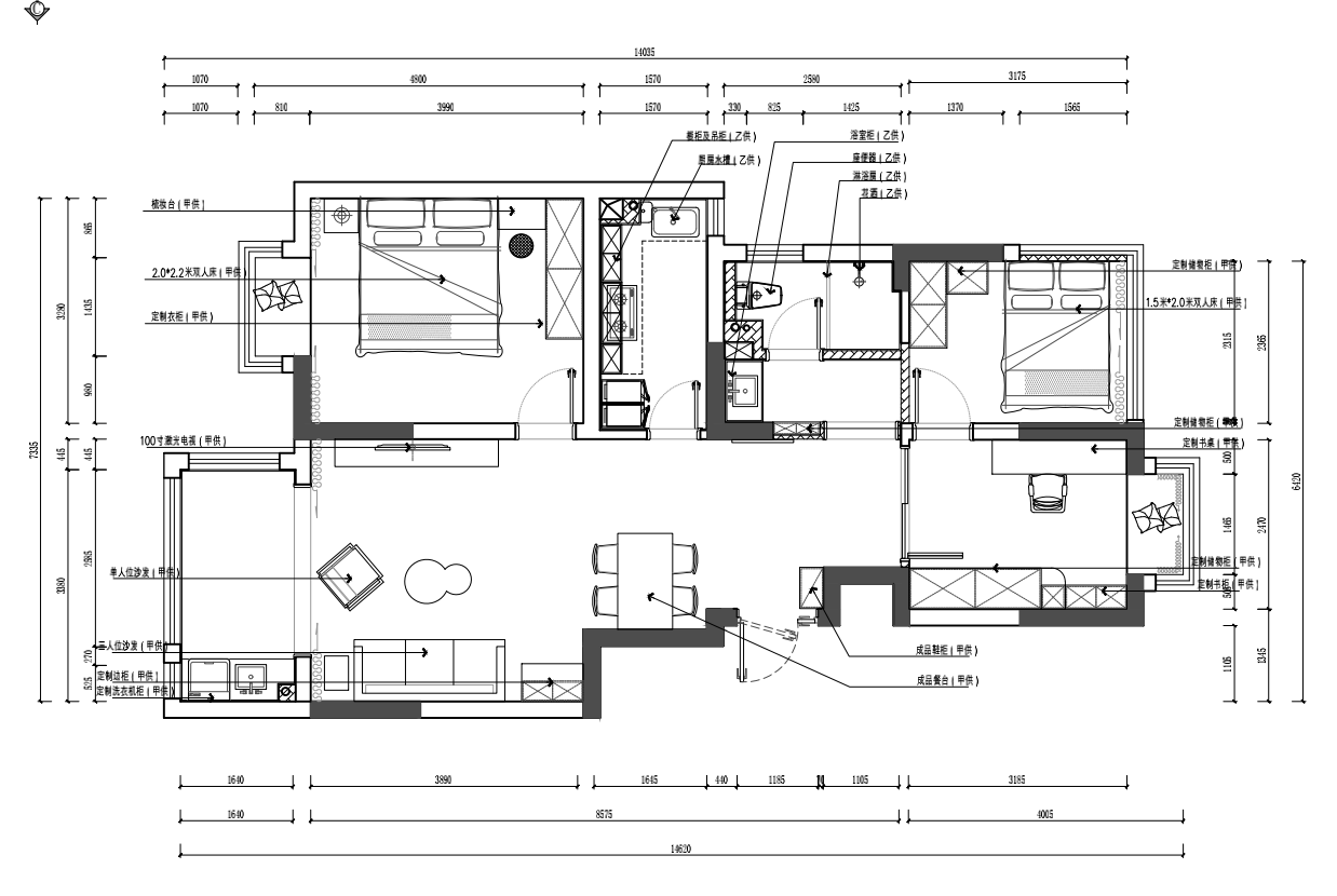
面积:89
风格:日式
设计师:刘洪奇
造价:13万
户型分析:
户型得房率高 , 动线合理 , 没有浪费面积 。 原本空间规整 , 通过墙体改造 , 改变了原本卧室对镜子的问题 , 增加了半开放式书房的功能 。
设计理念:
本案为业主个人单独居住 , 风格定位为日式 , 简单的原木色线条处理 , 增加了空间的结构感 , 同时原木色亲切自然的生命气息 , 使得空间干净充满活力
客餐厅
采用客餐厅一体化设计整体更通透自然 , 原木家具以及木地板保持同一色调 , 在视觉上空间得到了延伸 。
沙发背景墙一边是典雅的镂空屏风 , 一边是实用的餐边吊柜 。 实用兼顾美观!
电视背景墙
客厅的背景墙 , 选择了大面积的留白设计 , 整个简单干净的空间 , 搭配木质的茶几、电视柜 , 让人感觉简约而又自然 。
主卧
靠墙位置定制了整排的到顶收纳柜 , 满足日常的收纳以及工作需求 , 一切都显得井然有序 。
次卧
次卧由于空间限制 , 利用转角设计了L型衣柜 。 空间虽小 , 却一点不感觉拥挤 。
【89平米日式风装修案例 客餐厅一体化设计温馨自然】以上就是关于89平米日式风装修案例的分享了 , 希望能对您有所帮助!
- 如何解决小狗担心电吹风
- 淘宝客ab单风险大吗?如何操作?
- 支持华为,抵制iPhone,这股“爱国”风怎么不吹了?
- 89平米的美式风新家,装修特别洋气,大气上档次的效果超惹人喜爱
- 小学生优秀作文大全集400字 小学生优秀作文大全集
- 想建房但宅基地小?三层简约现代风,占地不大布局极佳
- 传说中的风扇灯到底好在哪?让我家餐厅高颜值又凉爽,这个夏天美滋滋!
- 风衣搭配什么裤子和鞋子 格子裤子配什么鞋
- t3羽量吹风机怎么用?t3吹风机使用说明书
- 冰雪经济正当时,酒旅业如何乘“冬”风?
特别声明:本站内容均来自网友提供或互联网,仅供参考,请勿用于商业和其他非法用途。如果侵犯了您的权益请与我们联系,我们将在24小时内删除。
