土建造价参考82万,面宽11.7m×进深13.5m 三层欧式风格别墅

文章图片

文章图片

文章图片

文章图片

文章图片

文章图片

项目概况
项目位置丨浙江杭州图纸编号丨000683建筑尺寸丨面宽11.7m , 进深13.5m建筑面积丨465.00㎡占地面积丨147.00㎡官方指导价 | 土建82万建筑高度丨9.85m建筑风格丨欧式结构形式丨砖混结构
△总平面示意图
01.
丨建筑效果图丨
△南侧效果图
△人视图
△人视图
△鸟瞰图
△庭院效果图
△鸟瞰图
△人视图
02.
丨平面布局图丨
建筑布局:六室、三厅、六卫、一厨房、一洗衣、一宗堂、一健身房、一书房、一储物、一品酒区、一酒窖、一露台
△地下室平面图
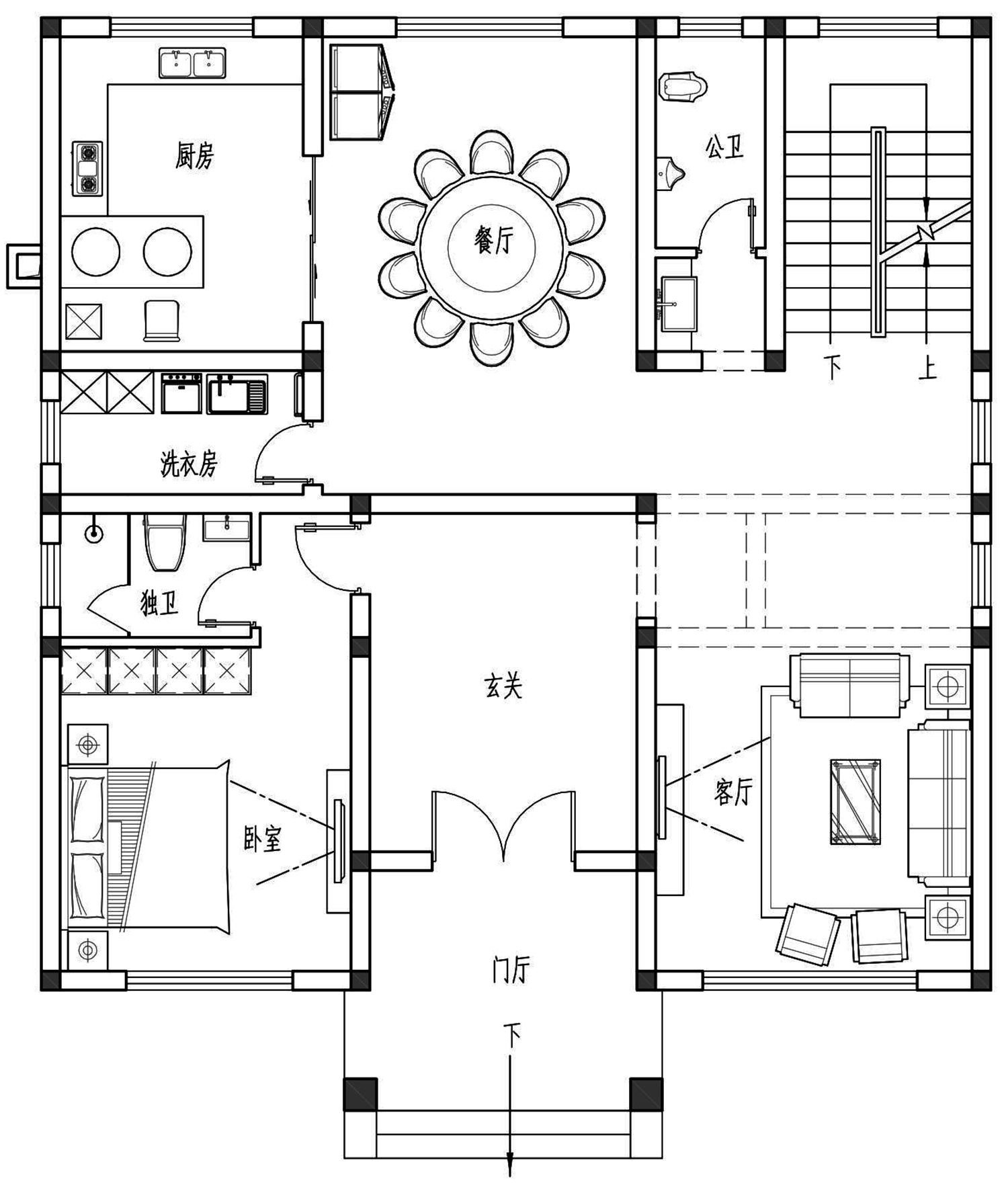
△一层平面图
△二层平面图
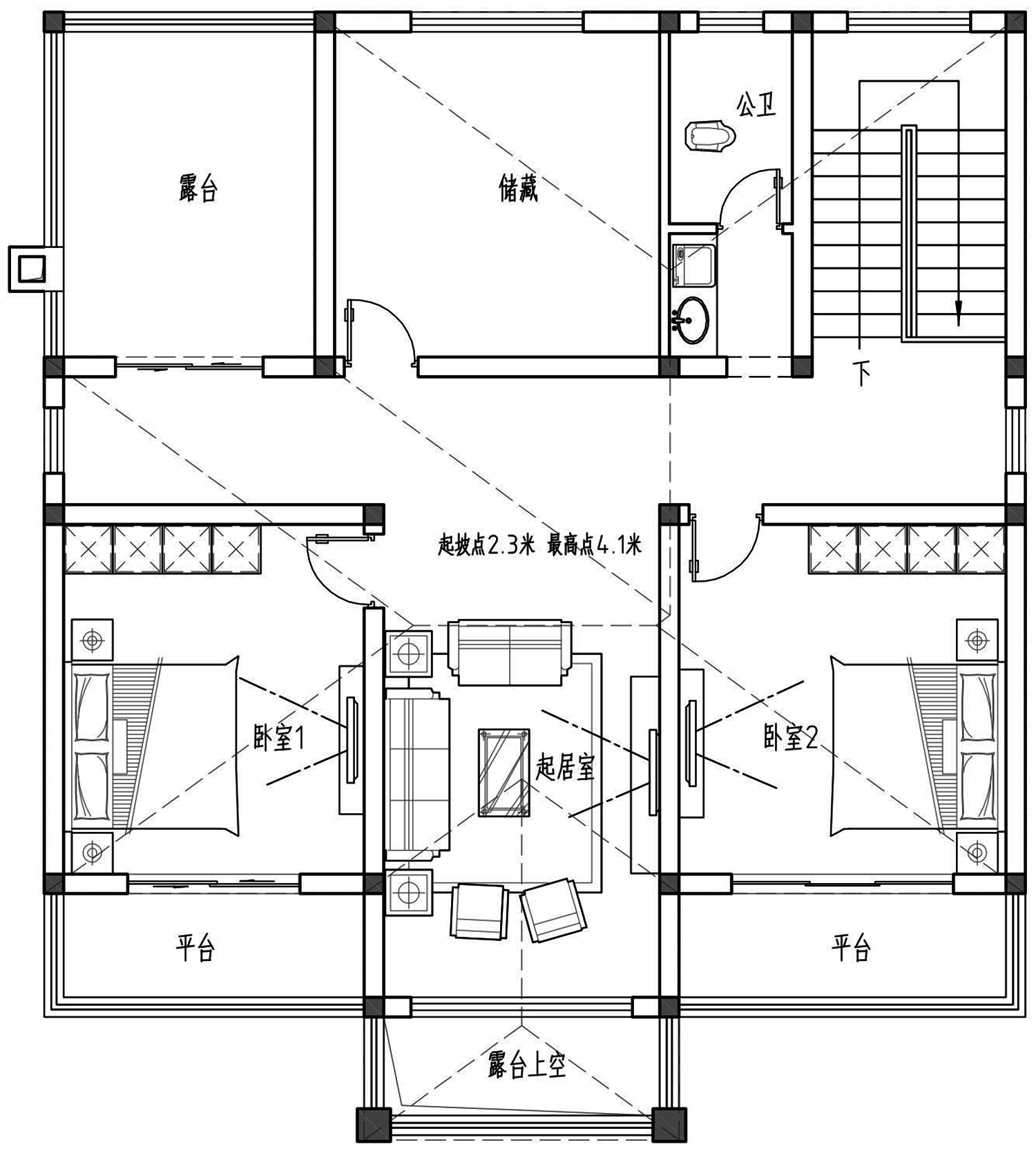
△阁楼层平面图
03.
丨项目点评丨
适宜地域南方
适用指数高
适用家庭家中有老人和孩子 , 喜欢欧式风格
别墅户型 6室、2厅、7卫
图纸内容建筑、结构、给排水、电气
【土建造价参考82万,面宽11.7m×进深13.5m 三层欧式风格别墅】建筑共有二层+地下室+阁楼层 , 建筑一层采用三开间布局形式 , 玄关空间相对封闭 , 为入户部分提供充足的缓冲空间;北侧餐厨空间采用一体化设计 , 西侧增设洗衣房方便日常家务清洁和盥洗使用 。 二层以居住功能为主 , 书房和健身房丰富整层的多功能体验 , 宗堂的布设贴合当地传统生活习俗 。 三间套房的设也为各个居住空间提供更多便捷 。 阁楼层最低层高不小于2.3m , 充分保障室内空间的开阔和舒适度 。 建筑为欧式风格 , 立面采用对称化装饰设计 , 采用不同色深的褐色、米色组合 , 结合整体立面造型和装饰构件 , 突出视觉层次感 。 门厅部分作为视觉中心焦点 , 设计师运用了更多欧式元素对其进行装饰 。 屋顶的蓝色屋面瓦与立面色调形成对比 , 结合多种开窗设计 , 让建筑从外看去更加自然和谐 。 建筑在北侧和东西两侧简化装饰设计 , 更多地保障功能性体验和室内的通风采光效果 。
- 单一指标缺少有效性,我们看到的数据还具有投资参考价值吗?
- 早期项目 | 二手奢侈品市场成新风口?「桃真」想通过数据化手段为行业创造价值
- 女生学工程管理好还是工程造价好? 工程管理和工程造价区别
- 明明吃得少,但却瘦不下来,这是为何本文列出几个原因,参考下
- 装修参考韩国我已经说累了!想要装书房,这4套案例可做入门首选
- 淘宝补单维持什么数据?需要参考哪些数据?
- 工程造价中什么情况下可以使用清单计价 什么情况下可以使用武器
- 我飘了,三层小别墅的设计都敢拿来作参考!
- 土建造价参考64.1万,面宽15.8m×进深12m 二层欧式风格别墅
- 餐厨如何布局更好用?以后就照这5个参考案例装,收纳能力杠杠的
特别声明:本站内容均来自网友提供或互联网,仅供参考,请勿用于商业和其他非法用途。如果侵犯了您的权益请与我们联系,我们将在24小时内删除。
