选房笔记:刚需界的天花板户型,到底长啥样?

选房笔记存在的意义有且仅有一个 , 那就是在买房选房前 , 帮大家更为全面的了解楼盘户型优劣 , 仅此而已 。
大家好 , 我是选房君 。 一个专门研究楼盘户型优劣 , 帮大家挑选房子的建筑师 。 今天 , 我要跟大家分享一款刚需界的天花板户型 。
讲真 , 别说是北京 , 哪怕是放眼全国 , 我都认为这是我见过的最完美的刚需户型 , 没有之一 。 接下来一起欣赏下吧 。
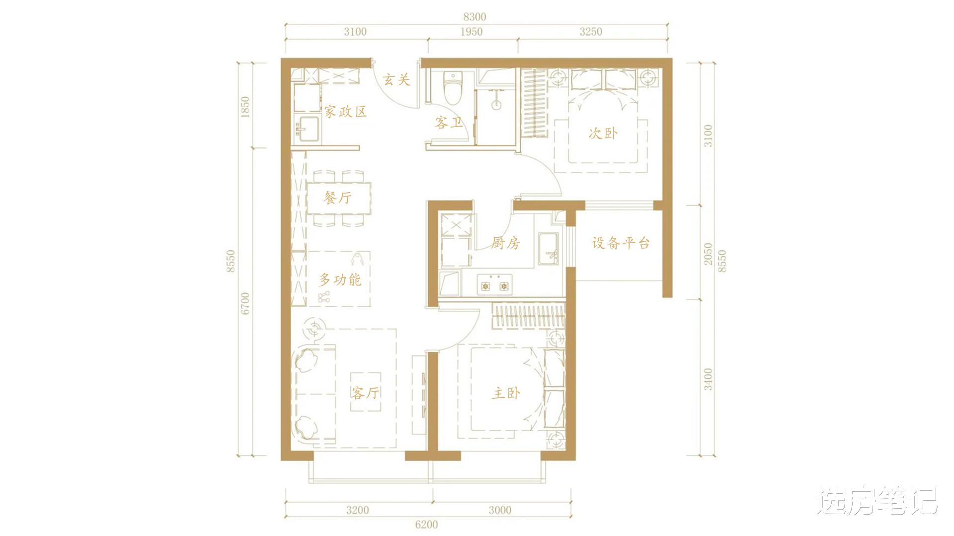
选房观1:因为房价不断攀升、因为单人户家庭的比重不断攀升 , 因为开发商不乐意打造小面积户型 。 所以光是77㎡这个数字本身 , 就是一个很稀缺的存在 , 特别是北上深等高房价地区 , 大家以为然否?
选房观2:进门的家政区大家看到了吧?我就想问问大家 , 哪怕是在150㎡的改善户型中 , 诸位见过几例?而这种情况却发生在77㎡的小面积户型身上 , 你们说神不神奇?
这第二个稀缺指标 , 我觉得我给的一点没毛病 , 大家觉得呢?
选房观3:诸位看看北次卧的尺度 , 再来想想北京120㎡以内的户型中 , 有多少北次卧是局促到需要床贴窗摆放的 , 做个对比你们就会知道什么是性价比 , 什么叫宜居 。
稀缺不?对于有些地方不稀缺、对于大面积户型不稀缺 , 但对于北京、对于小面积户型 , 真的很稀缺 。
选房观4:现在的家庭 , 很多都是三口之家自住 , 他们为什么要考虑三室户型?是他们钱多?显然不是的 , 是因为专家大咖都在闭着眼喊必须买三室 , 他们偏听偏信了而已 。
所以我再阐述一个观点:但凡能放得下一排书柜跟一张书桌的空间 , 它 , 也能称为一室 。 也就是说这个77㎡的两室一卫 , 实际的功效基本上等同于90㎡的三室一卫 , 而且局部空间更宜居 , 这个观点大家觉得怎么样?用刚需界的天花板户型来形容 , 真的很过分么?
综上:判定本户型为刚需户型 , 跃迁户型 , 稀缺户型 , 天花板户型 。 给予本户型99分完美评级 , 强烈建议业主闭着眼买 。
【选房笔记:刚需界的天花板户型,到底长啥样?】以上分析不知大家觉得如何?在90㎡以下的刚需户型中 , 诸位还能找出比本户型更完美的存在不?欢迎留言探讨 , 更多买房选房困惑亦可文末留言 , 关注我 , 一起让买房这件事变的更简单 。
- 2021年双11联想笔记本销量 2021笔记本电脑销售排行榜
- 2013年宏碁笔记本电脑排行 宏基汽车销售排行榜
- 宏基acer的笔记本电脑排第几啊 宏碁笔记本电脑的销售排行榜
- 淘宝过年笔记本有活动吗?优惠力度大吗?
- 2021笔记本销量前10品牌 品牌笔记本电脑销售排行榜
- 笔记本电脑哪个牌子好 笔记本销售额排行榜
- 2021笔记本中国销量排行榜 笔记本电脑销售排行榜
- 全球销量前十电脑 笔记本销售排行榜
- 小红书笔记怎么放图?有哪些误区?
- 小红书笔记看不到全文是什么原因?
特别声明:本站内容均来自网友提供或互联网,仅供参考,请勿用于商业和其他非法用途。如果侵犯了您的权益请与我们联系,我们将在24小时内删除。
