
文章图片

文章图片

文章图片

文章图片

文章图片

文章图片

文章图片

文章图片

文章图片

文章图片

文章图片

文章图片

文章图片

文章图片

文章图片

文章图片

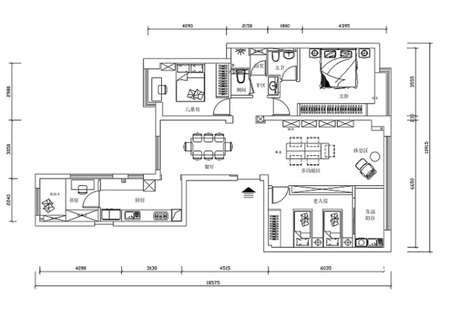
这套案例 , 其实在我们之前一期内容中就有分享过 , 但笔者惭愧的是 , 当时的内容没有介绍的足够详细 , 留下了遗憾 。 回头再看这套案例 , 真的很让我喜欢 , 基于此就忍不住分享给大家了!
这套案例呈现了一对福建夫妻家中的高级场面 , 与众不同的是 , 他家客厅没有沙发、没有电视 , 却能集休闲、会客、品茗、阅读、学习、冥想等功能一体化 。 而整体装修方面 , 以大量榉木色搭配白色为主 , 摒弃一些华而不实的堆砌式装修 , 把预算的重心转移到提升家居、和材料本身的品质上 , 虽然简约 , 但全屋几乎都是颇具质感的实木家具 , 非常环保耐看 。 还有一处亮点在卫生间 , 整个卫浴功能被改造成三分离的模式 , 真心太实用了!希望给大家一些参考!
- 大面积白色,冷暖相间的深蓝与金色打造高级感,梦想中的别墅来了
- eye cream化妆品中的意思
- 怎样才气根除家中的小飞虫
- 影视作品中的“最萌身高差”,你最喜欢哪对
- 怎样写家长眼中的孩子评语?
- 要培养上初中的孩子哪些习惯?
- 装修中的8大隐形消费,好多人都不知道,第一次装修千万要注意了
- 超声波流量计在水量调度中的重要性
- 狗狗有4个行为,搞不懂在其中的含意,很有可能你白养了
- 用好摄影构图中的“点”,摄影小白用手机也能轻松出大片!
特别声明:本站内容均来自网友提供或互联网,仅供参考,请勿用于商业和其他非法用途。如果侵犯了您的权益请与我们联系,我们将在24小时内删除。
