
文章插图
第一、首先,我们要知道 , 不论是什么的施工图 , 都是需要我们以真实物体为标准来制作施工图的,所以施工图在设计的时候,我们首先要做好的,就是把实物和图形的比例算好 。
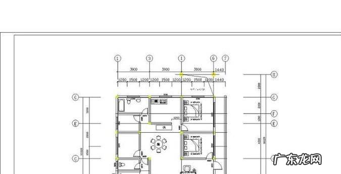
第二、算好比例后,我们就可以按照我们想施工的物体样子来设计施工图了 , 在施工图中,我们必须要表明各个需要施工地点的细节,并把它们排序 。

文章插图
第三、如果想要我们的施工目标更精准,那么我们还可以对一些比较大的施工目标再单独进行制作施工图,这样我们在施工时就会有更详细的标准 。

文章插图
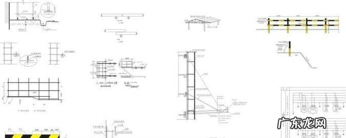
第四、最后也是最重要的,在制作施工图时 , 我们记得把一些需要施工的零件单独设计施工图,这样我们在施工时就可以分清楚施工的先后顺序了 。【施工图怎么画才能更专业】

文章插图
- 刺激战场绝地海岛地图 刺激战场热带雨林怎么玩
- 今年的棉花价格多少钱一斤?听听棉农怎么说,看完涨知识了!
- 地下室被私自扩建怎么回事
- 地板砖地面怎么拖又快又干净
- 自粘墙纸怎么撕下来
- 怎么如何隐藏自己的QQ号
- 王者荣耀狂铁怎么出装
- 童装店铺怎么装修
- 怎么用PS制作公章效果:简单又好用!赶紧学起来吧
- 怎么去除图片中的马赛克?教你一招,简单又好用!
特别声明:本站内容均来自网友提供或互联网,仅供参考,请勿用于商业和其他非法用途。如果侵犯了您的权益请与我们联系,我们将在24小时内删除。
