
文章图片

文章图片

文章图片

文章图片

文章图片

文章图片

文章图片

文章图片

相信很多人在网上刷装修案例时 , 都会将视觉重点放在色彩搭配、软装选择、以及造型设计上 。 其实最值得我们借鉴的 , 反而是不起眼的空间布局及结构改造 , 因为最基础也是最重要的 。 哪怕户型与新家不一样 , 也可以丰富我们的装修思路 。
本期就带来了一套十分棒的户型改造案例 , 在面积仅有84㎡的情况下 , 不仅做到了完美的生活动线 , 还拥有了大量的储物空间 。 甚至可以不夸张地说 , 简直是“教科书式布局” , 非常值得我们来参考 。
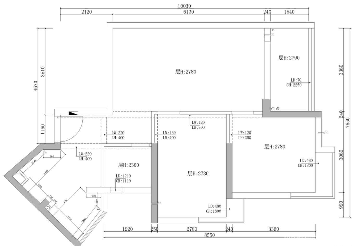
平面结构图
本案坐标广州 , 面积84㎡ , 两室两厅一卫的格局 , 常住人口只有夫妻二人 , 父母偶尔会过来小住 。 原户型存在的问题还是比较多的 , 比如过道动线局促 , 且缺少采光、卫生间面积很小、以及次卧比主卧还大等等 。
而屋主对新家的需求 , 则希望空间是通透的 , 并且考虑到即将有孩子 , 所以还需要大量的储物空间 , 以确保在后期的生活中 , 家里不会凌乱 。
平面方案图
结合屋主的需求 , 以及现有的空间情况 , 布局改造如下
1、缩小次卧面积 , 为入户增加屏风隔断 , 并优化两个房间的空间动线 。
2、卫生间采用三分离设计 , 并解决入户鞋柜的需求 。
3、南阳台纳入室内 , 进一步提高空间面积 。
4、主卧门洞调整到侧面 , 延伸出一块完整的电视墙 。
玄关
当进门对面的墙体改造成隔断后 , 立马就让空间通透了许多 。 尤其是隔断上的圆窗 , 搭配上少量的植物后 , 更是营造出了一种曲径通幽的意境 。 由于旁边就是厨房和卫生间 , 所以地面采用六角砖 , 和木地板搭配 , 既在视觉上做到了平衡过渡 , 也方便了日常打理 。
鞋柜是利用卫生间面积 , 做了内嵌式处理 , 再搭配上左侧的全身镜、洞洞板隔层 , 不仅拥了超多的储物空间 , 也让入户功能性得到了完善 。
厨房
玄关右侧就是厨房 , 移门隔断正常保留 , 可以避免油烟外溢 。 虽说内部是异形结构 , 看似使用率比较低 , 实际上当橱柜贴着墙体设计后 , 却也将空间充分利用了起来 。 而给橱柜做高低台 , 以及以白色调为主后 , 也在明亮的氛围中 , 实现了人性化的操作动线 。
卫生间
卫生间算是家里的一大设计亮点 , 考虑到原空间十分紧凑 , 利用厨房延伸出来的门洞墙体 , 将台盆独立在外 , 不仅实现了三分离的布局 , 还提高了空间使用率 。 尤其是在疫情下的时代 , 玄关处有一个洗手台 , 也让生活做到了干净、卫生 。
- 厨房到底要不要装地漏?希望我家的教训可以给你点建议
- 为什么建议建筑、装修行业中的包工头,成立一家小规模企业?
- 南宁朝阳广场跳广场舞的人多吗大家尬舞吗
- 长辈圈火的10个家居品,本以为父母图便宜没好货,没成想这么实用
- 装修犯了这十四个小错误,住进新家才发现太坑了
- 若何选购电热水壶
- 多喜爱家纺品牌荣誉是如何?
- 小家电节电有妙招
- 你听过哪些很敷衍的名字?
- 家中床垫刺鼻的味道是什么,甲醛吗?
特别声明:本站内容均来自网友提供或互联网,仅供参考,请勿用于商业和其他非法用途。如果侵犯了您的权益请与我们联系,我们将在24小时内删除。
