花语墅 | 法式轻奢 ? 一眼沦陷温柔精致

文章图片
【花语墅 | 法式轻奢 ? 一眼沦陷温柔精致】

文章图片

文章图片

项目地址 | 花 语 墅
项目面积 | 128平米
设计风格 | 法式轻奢
主案设计 | 李 强
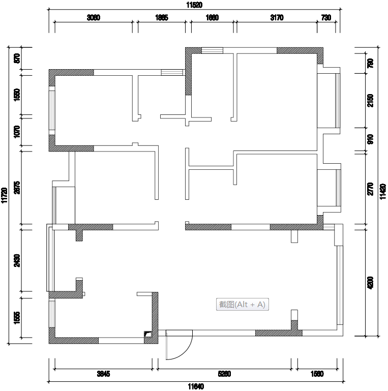
原始户型图?
平面布置图?
整体采用莫兰迪配色 , 在灰色、白色、奶油色上加上褐色等颜色增加色彩的层次感让家显得更加温馨 。 优雅的线条 , 治愈每一个在家的时光 , 奶白色的暖调空间展现舒缓的氛围 。
客厅将阳台与客餐厅联为一体 , 形成一个开阔的整体空间 , 给家一种开阔大气的感觉 , 让家显得比实际面积大 。 沙发背景墙用法式石膏线条造型 。 家具的造型圆润舒适 , 抛却了锐利的冲击 , 极具包容感 。 法式基调的温柔奶白色搭配华丽吊灯 , 呈现高级又不失仪式感的氛围 。
雕刻的线条 , 柔化的弧形 , 抹去了生活的棱角 , 留下了视觉的美好 。 背景墙为了呼应轻法式 , 做了石膏线条 , 打通阳台 , 开阔了视野 , 深色茶几跟摆件是点睛的灵魂 。
整体餐厅风格都采用比较低调的奶白色与米色调给整个室内营造一种舒适休闲慵懒的居家氛围 , 餐厅空间的储物柜采用温润质感的治愈白 , 一见倾心惬意的生活气息 。
- 家有兄弟就得这么建!高性价比新中式双拼别墅,速速收藏!
- 三层精致别墅,L型大露台,居住舒适自在,值得你心动!
- 晒晒农村婆家的800平小别墅,全乡最豪华!光一个吊灯5万多
- 138平居然有现代时尚、雅致东方、法式优雅,真是太漂亮了
- 13×10米带架空层的三层现代别墅,防水又防潮,便宜又舒适
- 别墅装修 | 古典中式风,庄重典雅大气之家
- 平屋顶带凉亭三层别墅,11×13米,挑空客厅+旋转楼梯
- 10.7米×12米三层新中式别墅,雅致非凡,共鸣文化传承
- 两层新中式别墅,13×14米,对称设计,2个露台,还带庭院设计
- 别墅地下室安装污水提升泵效果好吗
特别声明:本站内容均来自网友提供或互联网,仅供参考,请勿用于商业和其他非法用途。如果侵犯了您的权益请与我们联系,我们将在24小时内删除。
