这是我见过最有品位的家,光装修就花了113W,还美到上了家居杂志

文章图片

文章图片

文章图片

文章图片

文章图片

文章图片

文章图片

文章图片

文章图片

文章图片

文章图片

文章图片

文章图片

文章图片

文章图片

文章图片

文章图片

文章图片
这套位于昆明西山区290㎡的底跃是屋主第二居所 , 只因自己和父母都比较喜欢云南的天气和自然环境 , 每年冬天都在来到这边旅游小住就买下了它 。
房子距离滇池不远 , 开车大概10分钟就能抵达 , 然后漫步湖边 , 放松身心 。
装修的话 , 屋主选用了“侘寂风” , 并且光费用就花了113万 , 当然效果出来也是不俗的 , 不仅温柔舒适、素净高雅 , 而且还美到了登上家居杂志 。
总之 , 这是我见过最有品位的家 , 全屋温馨又高级 , 不信一起来看看吧 。
平面图
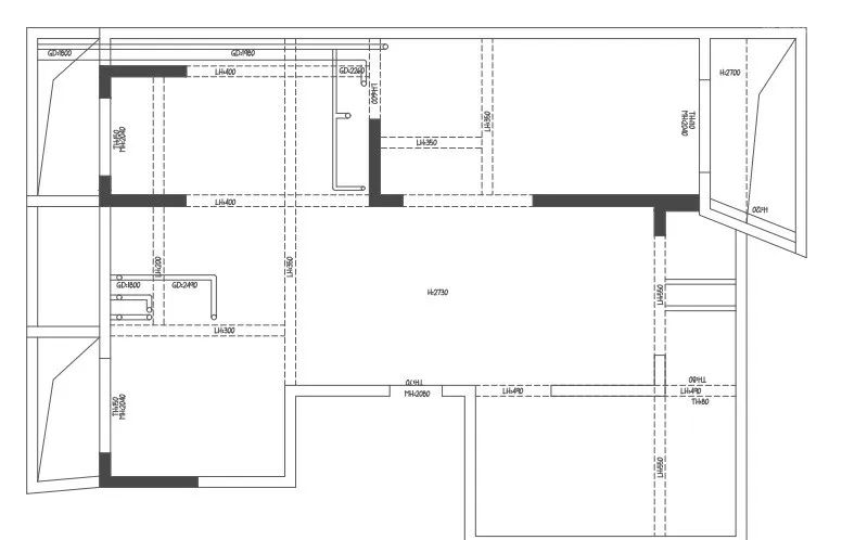
一楼原始结构图
一楼平面布置图
一楼为三室两厅的户型 , 后来根据需求改动如下:
- 1、考虑到父母上了年纪腿脚多有不便 , 便把采光更好的一楼让给父母住;
- 2、父母房附带的卫生间改为三分离的结构来提高使用效率;
- 3、将厨房左侧的次卧改为餐厅 , 并进行一体化的设计 , 这样获得更加宽广的烹饪空间 , 同时便于两者之间的联系和互动 。 至于卧室 , 只保留一间卧室作为客房就可以了 。
- 入住2年后,我发现这4个“网红设计”,谁用谁顺手!给大家看看
- 为了赶跑行业的坏人,他挥金数亿,8年只干这一件事 | 数字化的秘密
- 晒晒同事的房子,头一次见阳台这样隔断,晾衣服再也不到处湿答答
- 晒晒我家80w的农村别墅,上下400平,餐桌大得吓人,估计你没见过
- 新浪目前只剩微博这个产品站得住脚了吗?
- 美国的军舰又撞上了,这美国究竟是怎么了?
- 莲商会 这个夏天,把荷花照片,拍高级
- 减不了肥这要怪你的肠道微生物群
- 糖尿病人餐后血糖8.6正常吗
- 你们还记得哈佛女孩刘亦婷吗?
特别声明:本站内容均来自网友提供或互联网,仅供参考,请勿用于商业和其他非法用途。如果侵犯了您的权益请与我们联系,我们将在24小时内删除。
