120平北欧风三居室,各个居室柔和淡雅,独立且相融

文章图片

文章图片

这套房屋的装修在空间划分 , 色彩运用 , 细节搭配上都非常用心 , 北欧风的设计传递出最完整的视觉美感 , 120平米的三居室营造出沉稳的生活品质 , 一步一景 , 细微之处见极致 。 装修与灯光恰到好处的配合 , 将各个居室映衬得柔和淡雅 , 独立且相融 。
业主需求:两口子刚结婚不久 , 对装修不是特别懂 。 设计理念:缺点:户型很少见 , 很多地方不可改动 。 优点:整体房间采光是非常好的 。 修改方案:卫生间 , 厨房都不是特别好动 , 所以干脆就将就以前的位置 , 把房间靠近洗漱区域
湿润质感的浅木色家具 , 高低错落搭配使用 , 实用且提升层次感
卧室的色调清新而温暖 , 做旧木板材质的壁纸 , 让睡眠区出现一抹清新
户型的通透感强 , 不同区域使用不同的材质和灯光
书房改成了开放式的 , 功能区的动线非常灵活 , 尽可能地设计了一些储藏空间
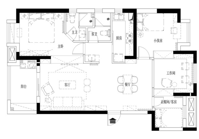
【120平北欧风三居室,各个居室柔和淡雅,独立且相融】平面布置图
- 独特的北欧风空间,满满的爱意,塑造温馨的90平小家
- 48平米的一居室,简约北欧风格超美,阳台改造成衣帽间,太实用了
- 北欧风设计技巧,适当加入这些元素,让你有个舒适惬意的生活空间
- 120平做二居室客厅居然敢用姜黄色、草绿色家具,但是还挺好看
- 没想到爸妈装的120㎡养老房特别高大上,儿媳们都抢着要搬进去住!
- 120㎡三室,灵活的空间布局宽敞又实用
- 产后3年一直120斤,怎么样才能减到100斤?
- 92㎡现代风与北欧风的碰撞中,营造既有设计感又不浮夸二人世界
- 140平北欧风四居室,记录着生活中独有的小确幸
- 120平轻奢风三居室设计,爱的就是这个客厅与卧室
特别声明:本站内容均来自网友提供或互联网,仅供参考,请勿用于商业和其他非法用途。如果侵犯了您的权益请与我们联系,我们将在24小时内删除。
