
文章图片

文章图片

文章图片

文章图片

文章图片

文章图片

文章图片

文章图片

文章图片

文章图片

文章图片

文章图片

文章图片

文章图片

文章图片
成都都市女精英的40㎡时尚公寓 , 因为太会装修火遍全网 , 拍下来瞧瞧
前言:在成都有这样一群年轻人 , 他们喜欢追逐时尚的元素 , 喜欢个性超前的生活方式 , 在紧张压力的都市生活中寻求自己内心的欢愉 。
女主人就是这样一个都市白领 , 白天的工作非常忙碌 , 夜晚的时候就会享受属于自己的生活方式 。
业主的这套房子只有40个平方 , 但是因为距离上班的地点比较近 , 方便日常上下班 , 所以这套小房子对业主来说也是非常的重要 。
房屋户型:一室
房屋面积:40平方米
装修预算:20万
所在城市:四川 成都
设计师:刘文
主要建材:大理石材、烤漆玻璃、天然木皮、进口耐磨地板、特殊磁漆
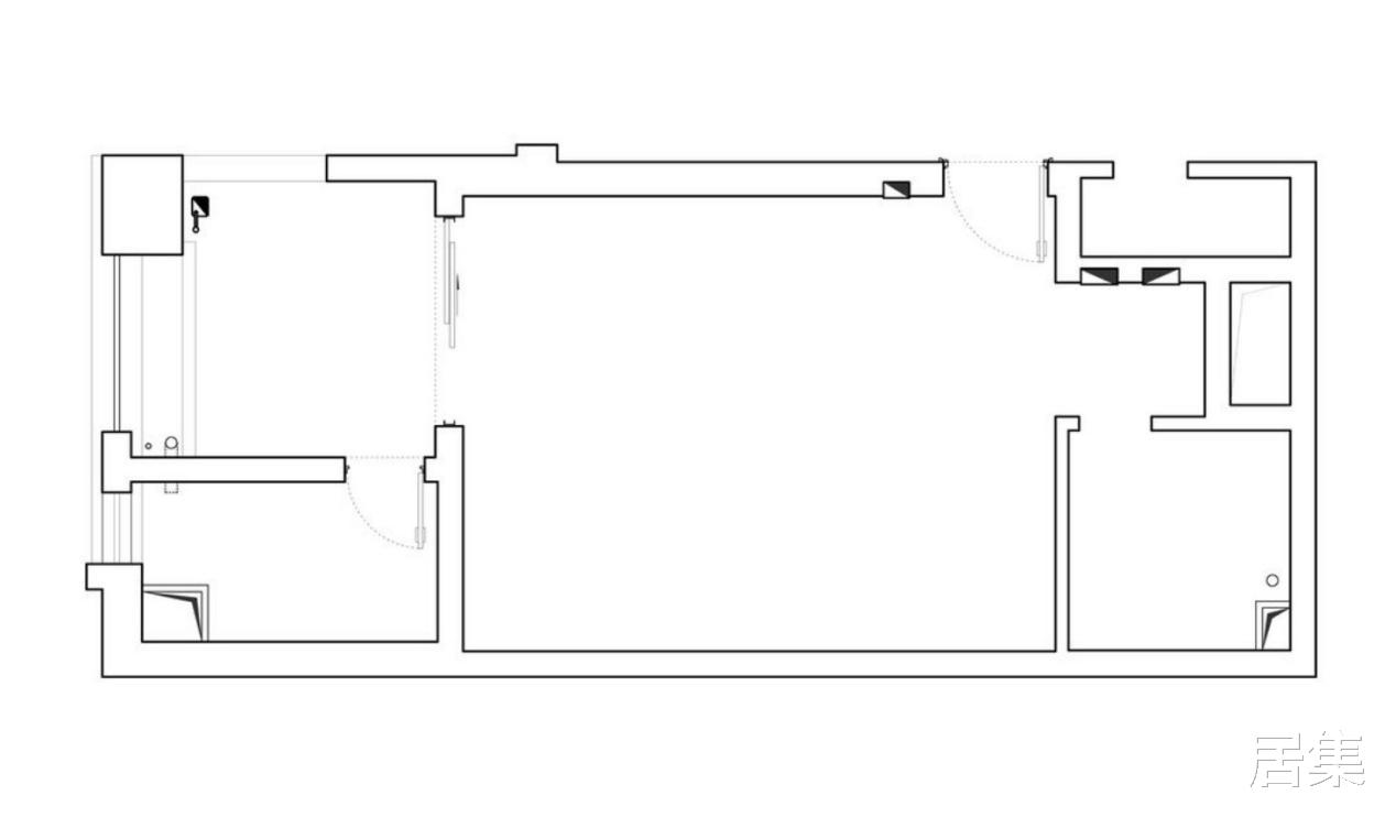
【户型图】
一:原始的衣帽间正对着卫生间 , 不仅位置尴尬内部空间也比较的局促 。
二:原始厨房内部空间面积比较低 , 影响日常使用的舒适度 。
三:整套房子之中只有一间卧室 , 改动难度比较大 。
一:设计单独的衣帽间 , 将卫生间的房门位置进行移动 , 保证空间互不干扰 。
二:平时只有业主一个人居住 , 所以专门设计了多功能的活动床来满足使用的需求 。
三:重新规划空间动线满足业主日常的起居需求 。
【客厅】
设计重点:空间充满现代质感
整个空间将内部不必要的隔断墙体进行打通 , 从而保证整体的通透和开阔感 。
- 小女孩站在自家阳台外,双手紧紧握住阳台的晾衣架……
- 【千万不能娶的四大星座女】美到骨子里的星座女
- 适合做铃声的英文歌,适合做铃声的英文歌女带节奏感的
- 【千万不要娶白羊座老婆】想睡白羊女更好的办法
- 女性月经期可以吃酵素梅吗
- 【单纯却有智慧的星座女】最智慧的星座
- 女生绝情起来到底有多狠?
- 装修工的女友工地干活,穿着时尚,网友感慨:让小娇妻搬砖,心疼
- 【历史上著名的流星】历史上著名的女性
- 【又美又有魅力的星座女】有着林黛玉气质的星座女
特别声明:本站内容均来自网友提供或互联网,仅供参考,请勿用于商业和其他非法用途。如果侵犯了您的权益请与我们联系,我们将在24小时内删除。
