老婆硬把床头预留32cm,少买一组沙发!入住后才知巧妙,晒晒

文章图片

文章图片

文章图片

文章图片

文章图片
设计的时候老婆有很多意见提给设计师 , 硬把床头预留32cm , 坚持少买一组沙发!入住后才直巧妙 , 邻居参观后悔没效仿了 。 真心实用极了 , 晒晒全屋
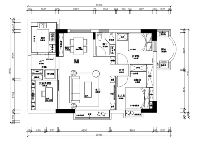
这是我们房子的户型图 , 房子的实用面积是97㎡ , 扣除了公摊之后的 。 因为公也是比较大 , 客厅也比较大 , 所以只有一个厕所 , 三个房间都相对拥挤了些 , 不过我们很重视客厅 , 因为将来有了宝宝 , 客厅大一点 , 也算是未来十年不错的过渡 。
一进屋的右手边 , 就是我家鞋柜的区域 , 估计有些人会纳闷为何鞋柜没有做一整面墙 , 留了一个摆放冰箱的位置 。
整个装修最满意的就是我家客厅了 , 当初其实我们听了网友的建议 , 提前看好了家具 , 然后再开始装修 , 为的就是保证家里的尺寸不会影响到后期的设计规划 。
当初还在施工阶段的时候 , 邻居来参观 , 说我家柜子太多 , 显得很累赘很闭塞 。 可完工后他有些懊悔没效仿 , 因为我们的电视墙用的是隐形门板设计 , 中间的电视机摆放位是嵌入式的设计 , 不会造成视觉压抑 , 还增加了不少收纳 。
【老婆硬把床头预留32cm,少买一组沙发!入住后才知巧妙,晒晒】厨房因为不用放冰箱 , 可以完美的做最大化的U型橱柜布局 , 吊柜地柜都装了不少 。
餐厅这边的空间也不算大 , 吊顶做了拉平处理 , 恰好也可以把空调的出风口进风口完美的收纳 , 并且良好的嵌入筒灯 。
家里唯一的一个厕所没有什么改造的空间 , 所以就做了正常的淋浴隔断 。 保证最基本的干湿分离 。 唯一后悔的就没有定制浴室柜 , 买了一个落地式的 , 卫生死角就比较多了 。
主卧设计的也很巧妙 , 我们没有选择大靠背的床 , 而是把原有的床头预留出来32cm , 打了32cm宽度的柜子 , 恰好把床头的空间利用起来 , 平时的一些换洗的床单 , 枕巾就可以直接放在背后 , 换的时候也很方便 , 随手一拿 。 而且也不需要床头柜了 , 背后的凹槽就可以给手机充电 。 延伸到左边是一排L型的定制柜子 , 收纳很强大 。
这个是未来的儿童房 , 现在作为临时的客房用 。
沙发背后的一个小书房 , 面积太小了不足以做一个独立的卧室 , 所有就做成了办公空间 , 兼备可以储物展示 。
- 老公硬在电视墙装水池!一进屋被迷住了,餐桌穿墙摆放,谁见过?
- 把新房交给老婆装修,可看到冰箱时全家都笑了,这是怎么想出来的
- 台式电脑硬盘价格,台式电脑固态硬盘价格
- 我的日式小院,教你如何把荒废的院落,打造成漂亮的日式小花园
- 别只盯着浴室柜,把马桶四周利用好,卫生间收纳全靠它了!
- 先把细节扒清楚了,再拆墙也不迟
- 卫生间里撒一把食盐,作用真的厉害,一年能省下不少钱,回家试试
- 老婆把主卧阳台“内扩”1m宽!挤出阳光衣帽间,全屋太温馨!干货
- 只因小两口把婚房简装,不吊顶还只刷白墙,让这小屋圈粉无数
- 老婆装修的新家,就因为阳台,门已经快被邻居敲坏了
特别声明:本站内容均来自网友提供或互联网,仅供参考,请勿用于商业和其他非法用途。如果侵犯了您的权益请与我们联系,我们将在24小时内删除。
