
文章图片

文章图片

文章图片

文章图片

文章图片

文章图片

文章图片

本期 , 甜茶为大家分享的家居案例 , 是我目前为止见过最“奇葩”的户型了 。 整个房子的形状 , 近乎一个三角形 , 看一眼就会觉得很奇怪 。 遇到这样的户型 , 想必大部分人都不知道该如何下手了 。
买房买到“奇葩”户型 , 千万别气馁 , 像本期女主这样改造 , 照样能拥有高级舒适的家 , 真漂亮!
但是一进家门 , 却被屋内的装修惊艳到了 , 和我预想的样子完全不一样 。 不仅没有拥挤、奇怪的感觉 , 反而给人一种高级又大气的家居氛围 , 太赞了!
【这是我见过最奇葩的户型,进屋却被惊艳到了,改造得真好啊!】
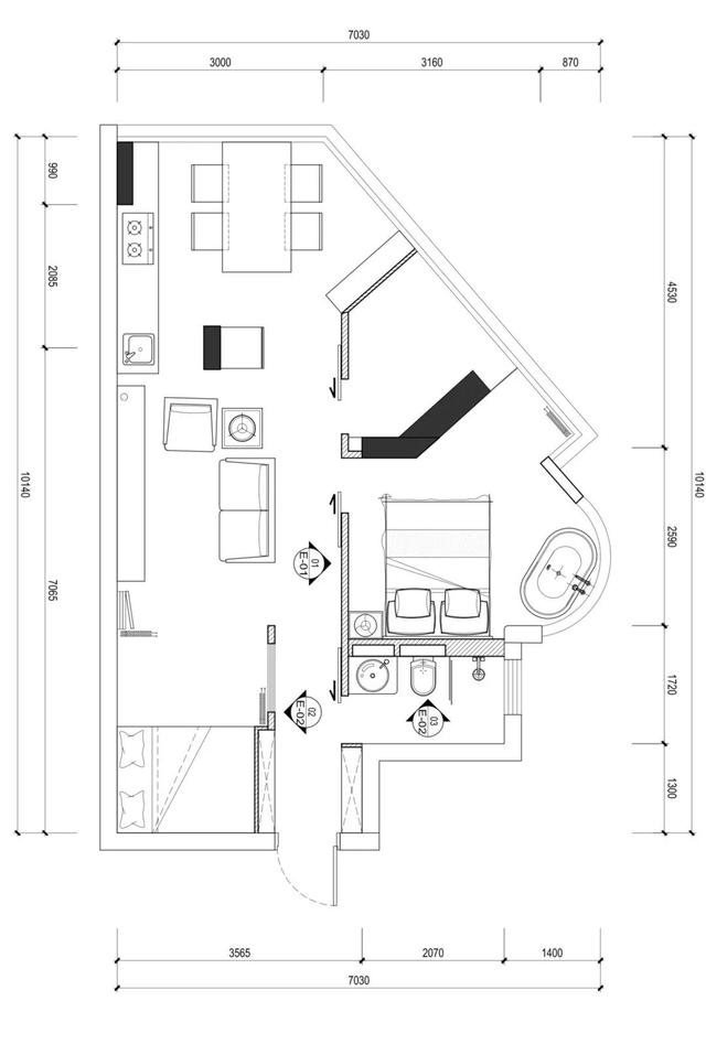
▲装修平面图这套房子的实用面积约48㎡ , 是个两居室的户型 。 屋主是一位都市白领 , 对生活的品质要求比较高 , 她希望整个家在保证舒适的前提下 , 能够呈现出与众不同的高级感 。
▲装修实拍图入户玄关 , 是一个狭长的空间 , 为了营造归家的仪式感 , 设计师做了以下规划:①安装两盏北欧圆形灯 , 增加玄关的亮度;②玄关右侧安装室内窗 , 提升氛围感;②入户两侧做嵌入式玄关柜 , 方便屋主换鞋 。
▲玄关实拍图玄关柜的颜色和墙面保持一致 , 是最简单的白色 。 为了减少单调感 , 柜门选择了凹凸边框造型 , 搭配金属质感圆形拉手 , 提升家具的精致感 。 柜内预留部分空间做穿鞋凳 , 上方固定一面穿衣镜 , 屋主在出门前可以整理仪容 。
▲玄关实拍图客厅的空间很小 , 为了减少压抑感 , 设计便在装修上做了“减法”:不做造型和吊顶 , 确保空间留白 。 所以目前 , 我们在客厅可以看到的 , 除了灯饰以外 , 就是一张白色的大沙发 , 视觉感非常宽敞 。
▲客厅实拍图沙发旁边 , 原本是一间小卧室 , 但空间实在太小了 , 连一张正常的床都不下 , 所以屋主让设计师直接把它打通了 , 作为客厅的延伸空间来使用 。
▲客厅实拍图设计师拆除了厨房和餐厅之间的非承重墙体 , 只留下了一个承重柱 , 打造开放式的餐厨空间 。 内部配色以纯白色为主 , 辅以黑色的嵌入式电器 , 营造干净清爽的烹饪、用餐氛围 。
▲餐厨实拍图餐厨的采光很好 , 有一整面大的落地窗 , 搭配百叶帘 , 营造出通透舒适的氛围感 。 平时 , 屋主在餐厅内用餐 , 可以俯瞰城市美景 , 非常惬意 。
- 建议大家,这几种卫生间物品需及时更换,让你有个精致的卫浴空间
- 建议:若发现装修工人在做这5件事,赶快让他停工,隐患太多了
- 减脂晚餐这么吃:坚持4个原则,晚上也能持续变瘦
- 你的手机相册里最不忍心删除的照片是哪张,这张照片有怎样的故事
- K50超大杯来了:升级骁龙8+ 影像这次也稳了
- 这三种疾病不行忽视,晚年犬易患
- 狗狗为什么常常刨土呢?原来是这种原因
- 当年装修真是洋相百出!万万不可掉入这8大坑,个个烧钱坑要命
- 沥青防水卷材厚度测量不准确?也许是这个原因
- 新房装修,这8个业主总结的血泪教训,看看你家中招几个
特别声明:本站内容均来自网友提供或互联网,仅供参考,请勿用于商业和其他非法用途。如果侵犯了您的权益请与我们联系,我们将在24小时内删除。
