这套是三室两厅的现代简约风格,希望对您的爱家装修有些许参考作用 。其中涉及到一些墙体的拆改,也圈出来了 。
作品信息
项目户型:3室2厅
设计风格:现代简约
设计团队:飞墨设计组
施工单位:合肥飞墨设计
项目地址:合肥 - 绿城玫瑰园

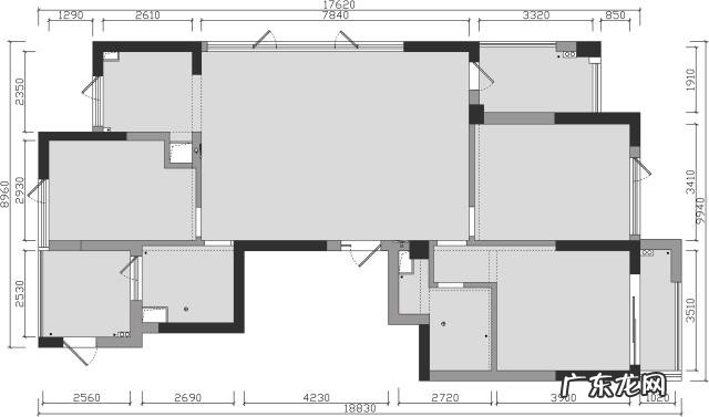
文章插图
?原始户型vs设计平面

文章插图
本案业主是一个热爱生活的人,对未来的家充满幸福的想象 。通过朋友认识了飞墨,然后共同完成理想的家 。

文章插图
业主自述
我有一套不大不小的房子,有一个很大的落地窗,想象着阳光洒在地板上,一家人其乐融融的生活着 。

文章插图
①厨房形成环岛动线,周围补充水吧台,分散功能,将门设计成隐藏式,可收可用 。
②南北次卧分别后退了一米左右,划分出家里的内过道,将所有卧室的门都藏在内过道里,既能保证家人的独立与隐私,又能达到美观的效果 。
③主卧采用套房设计,拆掉轻体墙重新归置,让室内呈直线走动,动线最短 。
④打造「厨房+餐厅+客厅+多动能区」的升级版LDK,满足业主平常与亲朋好友聚会的空间需求 。

文章插图
▲LDK回字形动线
(LDK:客厅Living room、餐厅Dining room、厨房Kitchen一体的开放式格局)
03设计解析

文章插图
现代简约讲究的是“藏”,用删繁的手法将空间分割,实现艺术上的突破和生活细节之间的转变 。客厅以白色打底,通透的米色和灰色作为辅助调和,视觉上延伸空间的温度,将人从喧嚣的外界一下子拉进宁静的家里,过滤掉浮躁、动荡的心情,独享静谧的生活日常 。

文章插图
放眼望去,空间整齐利落,设计师把业主这样的都市精英人士与生活环境之间的互动用设计贯穿其中 。解析空间诉求,简约却不失舒适,高贵又不显得冷寂,并融入三代同堂的家族情怀 。诠释工作、生活以及家庭关系的平衡,打造现代人雅致、惬意的居住模式 。

文章插图
你怎样对待生活,生活就怎样对待你 。
升级版的LDK,阳光透过大大的落地窗,猝不及防的跳进来,感受设计与生活的渗透融合 。开一杯香槟,空气中氤氲着微醺的果浆清香,生活的味道自己说了算 。

文章插图
以原木为主,与石材交互共生 。开放的空间给室内增加了更多的可能,也更显通透 。隐藏式灯光设计,烘托家居生活氛围 。不管是在周末慵懒的午后,还是邀约亲朋好友聚会,这光影都是最好的温度,见证着家里的细腻情愫 。

文章插图
设计师小墨,专注分享装修经验,有任何装修疑问都可以私信我哦!当理想与现实逐渐趋近时,生活里的惊喜自然不会少 。『世茂国风』这个项目就是我们与业主之间的惊喜,业主是飞墨的粉丝,关注我们很久了 。半年前就约了设计师咨询,拿房后直接去量房、出方案图 。业主看了方案图后,连效果图都没出,就直接签了装修合同 。
- 买房两室好出手还是小三室好出手?
- 两室两厅装几个空调
- 三室一厅一般多少平方
- 厨房改卧室,一卫变两卫,这套89平的装修,把每寸面积都用到点上
- 95㎡三室一卫,蓝色现代独居宅
- 93平三室两厅,刚入住晒晒,客厅漂亮极了,最满意卫生间,实用!
- 130㎡三房两厅轻奢风,装完发朋友圈,亲朋问我啥时候买的别墅!
- 我家是120平的三室两厅,装修花了8万,我最爱的是入户鞋柜!
- 90㎡两室变三室,空间大调换
- 晒我家72平三室新房,历时4个月终于入住,最喜欢客厅简单舒适
特别声明:本站内容均来自网友提供或互联网,仅供参考,请勿用于商业和其他非法用途。如果侵犯了您的权益请与我们联系,我们将在24小时内删除。
