有多少人被精装“误导了”?她重塑空间结构,完工后,巧妙至极

文章图片

文章图片

文章图片

文章图片

文章图片

文章图片

文章图片

文章图片

文章图片

文章图片

文章图片

说起精装房 , 相信很多人都不陌生 。 在当下的楼盘市场中 , 几乎有一半都是作为精装修来发售的 。 虽说这是一种趋势 , 也确实帮我们省去了装修上的麻烦 , 但相信有大多数人 , 都被精装给“误导了” 。 说得通俗一点 , 就是实际的精装修效果 , 和我们想象中的精装修效果差别很大 , 并且还会伴随一些空间布局不合理等问题 。
比如本期带来的这套案例 , 屋主在拿到新房钥匙之后 , 就对空间效果十分失望 。 因此 , 想都没想就决定重塑空间结构 。 而从完工后的效果来看 , 不仅布局巧妙至极 , 还拉满了空间的实用性 。
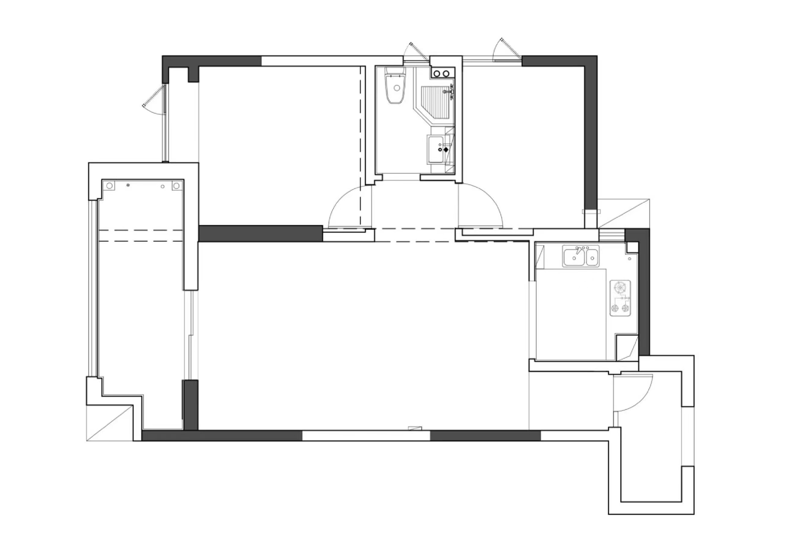
平面结构图
新房坐标武汉 , 套内76㎡ , 两室两厅的格局 , 屋主一家三口 。 如上面所说 , 这是一套精装房 , 屋主本以为可以省了装修上的麻烦 , 可新房的实际效果 , 却与她想象的相差甚远 。 再考虑到家里有一个小孩 , 想给他一个快乐、有趣的居住环境 , 所以还是决定对空间进行重塑 。
【有多少人被精装“误导了”?她重塑空间结构,完工后,巧妙至极】原户型结构很常规 , 虽说每块空间都比较工整 , 但隐藏的问题 , 却一点都不少 。 比如入户缺少收纳区、卫生间面积小、客厅过于封闭等等 。 因此 , 就算空间效果做到了精装 , 也不符合屋主的居住需求 。
平面方案图
空间布局改造如下
1、厨房采用开放式 , 在提高空间通透性的同时 , 让玄关动线实现迂回 。
2、阳台与客厅打通 , 并将客厅整体抬高 , 提高空间的娱乐、休闲属性 。
3、卫生间缩小开间 , 并向两边的卧室扩大 , 实现干湿分离的结构 。 同时 , 再一次扩大餐厅的面积 。
改造前
改造前的空间说是精装修 , 其实与简装并没有多大的区别 。 唯一上点档次的 , 就是用岩板设计的电视墙 。 不过即便如此 , 整个空间还是给人一种老气横秋 , 十分呆板的感受 。
- 日本人的卫生间我服了,打个毛巾柜薄到10公分,收纳却整整齐齐!
- 哺乳期的产妇产后体重还有165斤,月子里如何减肥且不留月子病
- 小孩有必要补充维生素a吗 维生素a乙酸酯与维生素a醇的区别
- 你家的卫生间还装挂架?聪明人都装这样的,漂亮又实用!
- 维生素a食物有哪些 维生素a食物有哪些
- 缺乏维生素所对应的症状 人缺乏维生素有哪些表现和症状
- 维生素a缺乏会发生什么 缺少维生素a的表现和症状有哪些
- 平时爱吃面食的人,该怎样瘦身
- 张一山的父亲是什么人,跟韩红是兄妹吗,怎么回事呢
- 有没有什么方法可以让脸看起来瘦一点呢
特别声明:本站内容均来自网友提供或互联网,仅供参考,请勿用于商业和其他非法用途。如果侵犯了您的权益请与我们联系,我们将在24小时内删除。
