上海新婚夫妻的“倾斜”婚房,女主人布置的美如画,值得参考

文章图片

文章图片

文章图片

文章图片
【上海新婚夫妻的“倾斜”婚房,女主人布置的美如画,值得参考】

文章图片

文章图片

文章图片

文章图片

文章图片

文章图片

文章图片

家是每一个人的归属地 , 并不在于房屋面积的大小 , 只在于生活得是否舒适和踏实 。
而在物价横飞的上海 , 要想买一套属于自己的房子 , 压力十分的大 , 但是这样的梦想并不是不能实现的 , 就像这次分享的案例一样 , 业主就是一对新婚的小夫妻 , 两个人在上海 , 为了买房子打拼了多年 , 虽然只是凑齐了这套100平方米房子的首付 , 但是这意味着他们在上海要有真正属于自己的家 。
设计师结合夫妻两个人的生活需求 , 同时节省改造的预算 , 充分给夫妻两个人打造出一个更加甜蜜 , 而且轻松的生活空间 。
房屋户型:两室
房屋面积:100平方米
装修预算:50万
所在城市:上海
设计师:李文
主要建材:大理石材、烤漆玻璃、天然木皮、进口耐磨地板、特殊磁漆
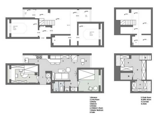
【户型图】
一:将开放式的厨房和餐厅连接在一起 , 让空间动线更加灵活 。
二:二楼将楼梯的位置进行调整 , 让动线分布更加的合理 。
三:卫生间进行空间的分离 , 整合了洗衣机的功能 。
【客厅】
设计重点:空间舒适性得到保证
客厅集中在一楼 , 将二楼的楼梯重新规划之后 , 下方预留出宽敞的就餐空间和收纳空间 , 大大丰富了一楼空间的功能和格调 。
采光最好的空间作为一家人的活动空间使用 , 搭配新鲜的植物盆栽 , 整个空间更加的自由和生动 。
楼梯下方全屋定制了大容量的收纳柜 , 节省空间的同时 , 也让整体更加的完整和和谐 。
【卫生间】
设计重点:方便日常使用
卫生间整体进行了独立的划分和隔断 , 方便日常的整理以及清洁 。
洗衣机也被安排在卫生间之中 , 不仅满足了日常的使用需求 , 也充分提升了空间的储物功能 。
- 深圳小夫妻10万整容级爆改40㎡老房,前后变化之大,惊呆网友
- 高温热浪|上海多云最高温35度 8月又将出现持续高温热浪
- 动能|第三届55购物节 消费“新赛道”带给上海增长新动能
- 司机师傅|高温天,上海这些区域网约车“抢手”了!早高峰司机和车辆增派
- 看了南京80后夫妻的家,才懂什么是颜值和实用并存,晒给大家看看
- 旅游市场|上海人注意!沪亲子游精致露营等成暑期热门!
- 解构|上海人注意!“五五购物节”12个标杆活动全解构
- 从窄小阴暗到明亮舒适,看了伦敦夫妻的老房改造,被一楼吸引住了
- 马桶|上海一定要看!消灭"拎马桶"!这些年的不凡路
- 破发|每日优鲜解散了?上海已无法下单!探访总部:有供应商前往催款
特别声明:本站内容均来自网友提供或互联网,仅供参考,请勿用于商业和其他非法用途。如果侵犯了您的权益请与我们联系,我们将在24小时内删除。
