夫妻晒出“家徒四壁”极简新家,不花哨很干净,真是越简单越幸福

文章图片

文章图片

文章图片

文章图片

文章图片

文章图片

文章图片

文章图片

文章图片

文章图片

文章图片

文章图片

文章图片

或许是因为之前的生活经验 , 这一次装修夫妻两人选择了极简风 , 室内没有花里胡哨 , 除了大白墙外 , 再放些必要的家具 , 效果看起来确实像是“家徒四壁”风格 。
有人说“家徒四壁”的装修就是“出租房” , 全屋白白的没有任何亮点 , 其实那是他们不懂 , 家居设计越简洁 , 越纯粹 , 越能展现出空间的高级感 , 等住了一段时间后 , 添置的东西越来越多 , 你就愈发羡慕一个开阔、自由的空间 。
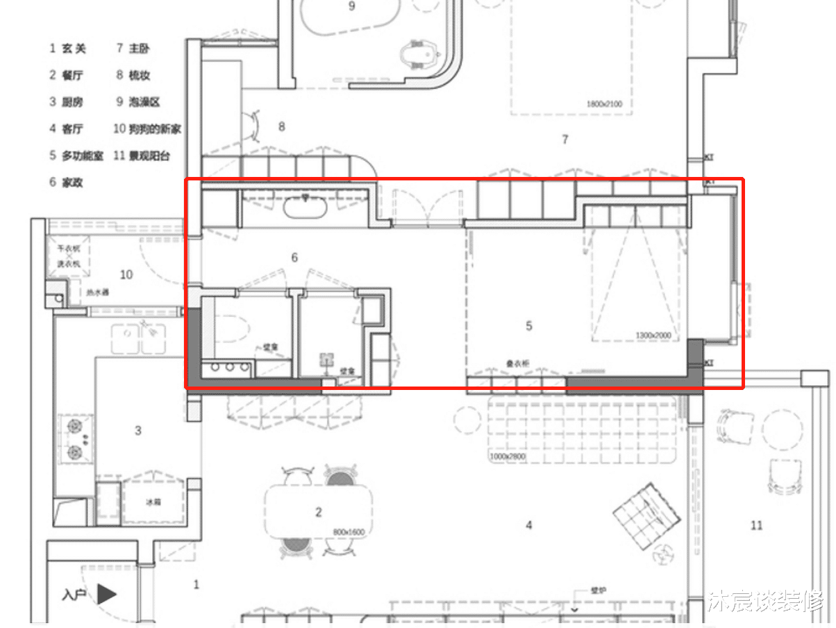
空间布局极简化装修的第一步 , 做平面改造的时候就展示出夫妻两人对极简化的热爱 , 你看 , 原来的户型虽然是3室2厅2卫的结构 , 但被分成一小块一小块的 , 动线不够明朗化 , 也不符合两人住的生活空间 。
不合时宜设计改造后的布局 , 可以说是空间被分成了三等分 , 从上往下 , 舍弃一间次卧室纳入主卧室 , 形成一个大套间;
中部是多功能空间 , 设计得很妙 , 具体有多奇妙 , 下面有详细说明;
最下面就是活动空间了 , 进屋后玄关、餐厅、客厅连在一起 。
改造后的100平方米更加方正 , 没有墙体的阻隔 , 去哪里都很方便 , 再加上“家徒四壁”风格 , 室内的确干净又舒适 。
开门即惊艳
推开门就很惊艳 , 一眼望到底的空间采用清爽的色调 , 轻
右侧做了一面顶天立地的柜体 , 又藏有露起到了展示与隐蔽的双重功能 。
晚上开启室内灯光 , 瞬间换种风格 , 暖光源把空间营造得十分温馨 。
- 等你家装修,厨房一定要坚持“4不装”,入住后就知道有多明智
- 为“安静”和大露台买顶楼,夏天怎么隔热?6种方法效果堪比空调
- 家里这几样东西就是“落后的代表”,别不信,多数家庭都有!
- 添置了5个“非常走心”的厨房小物件,做饭更顺手,做家务更方便
- 若再装修,一定避开这5个“新潮设计”,既费钱又不实用
- 老婆非要把衣柜装在“客厅走廊”,入住发现很实用,亲友纷纷效仿
- 业主拒付尾款,被装修公司上门“拆家”
- 各位装修“小白”,请牢记这些定制橱柜的“猫腻”,真的很实用!
- 即将立秋,“水八仙”陆续上市,若有条件建议要多吃,为入秋准备
- 给家里添置4种“高级货”,虽然价格小贵,却能很好的提升幸福度
特别声明:本站内容均来自网友提供或互联网,仅供参考,请勿用于商业和其他非法用途。如果侵犯了您的权益请与我们联系,我们将在24小时内删除。
