她35㎡小家,堪称“设计榜样”!全屋赏心悦目,真让人羡慕

文章图片

文章图片

文章图片

文章图片

文章图片

文章图片

文章图片

文章图片

相信每个人在装修新家时 , 都会将实用性放在第一位 。 尤其是小户型 , 更需要将每一块空间都利用到极致 , 从而保证基本的居住需求 。 那是不是说 , 在小户型设计中 , 只能追求实用性呢?答案显然是否定的 。
像下面这位屋主在装修新家时 , 就结合自己的需求 , 将居住舒适性放在了第一位 。 虽说实用性有所欠缺 , 但效果却十分赏心悦目 。 尤其是对于追求颜值的人来说 , 更堪称是“设计榜样” , 真的太让人羡慕了 。
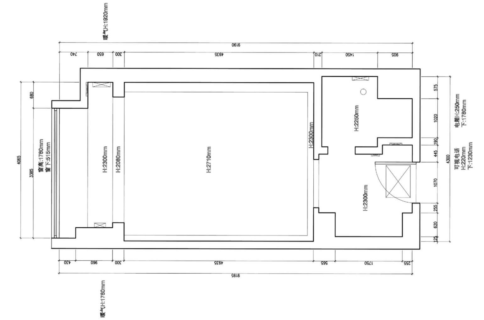
平面结构图
新房面积35㎡ , 常见的公寓型住宅 , 屋主目前一个人独居 。 对于空间的期待 , 屋主希望是温暖、圆润 , 且具有品质感的 。 同时 , 也希望新家是一个能让自己真正放松的居心地 。 而关于空间的功能性 , 屋主的要求并不高 , 甚至连厨房也不需要 。 毕竟是一个人生活 , 怎么简单就怎么来 。
平面方案图
结合屋主的需求 , 空间布局改造如下
1、原厨房改成台盆区 , 并承担进门收纳的需求 。
2、卫生间增加独立的淋浴间 , 以及更衣柜 , 让生活使用更加舒适 。
3、南阳台纳入客厅后 , 整体一分为二 , 一边为休闲功能区 , 一边为睡眠活动区 。
4、休闲区增加浴缸 , 进一步提升生活的品质感 。
入户
睡眠区看向入户视角 , 当空间不再需要厨房之后 , 则改造成了台盆区和收纳区 。 这样一来 , 不仅让卫生间实现了干湿分离 , 又解决了进门鞋柜的问题 。
而将门洞垭口设计成拱形 , 以及给地面铺上鱼骨拼花地板 , 则从一进门开始 , 就为空间奠定了圆润的基调 , 并赋予了视觉更多的延伸性 。
睡眠区【她35㎡小家,堪称“设计榜样”!全屋赏心悦目,真让人羡慕】
当空间一分为二之后 , 睡眠区直接以开放式的形态呈现 , 看似缺少了私密性 , 但在独居的情况下 , 却丝毫不受影响 , 并且还最大限度保留下了空间的通透性与采光环境 。
与玄关垭口一样 , 睡眠区和休闲区之间的垭口 , 也采用了拱形设计 , 这样既做到了呼应 , 又在视觉上形成了分隔 。
睡眠区放弃传统的床 , 并直接以地台的形式来设计 , 不仅不会遮挡休闲区的采光 , 也尽显悠闲、惬意的生活姿态 。 而当墙面以奶油色为主基调后 , 也在强化氛围感的同时 , 从骨子里都透着一抹温柔、治愈的气息 。
- 花6万块,打造40㎡一楼小院,鱼池 悬浮卡座 休闲平台一个都不少
- 177㎡法式轻奢,光辉旧日奏响生活协作曲
- 122㎡美式混搭风,开放式书房+钢琴房,灰色调凸显温暖和浪漫!
- 109㎡现代简约风,满足你对现代家居生活的全部向往!
- 旧房改造翻新丨 现代风格80㎡ · 不一样的优雅!
- 【鲁班装饰】大城小院230㎡现代简约风格,偶然
- 【鲁班装饰】紫鸢堡186㎡新中式风格,素言
- 96㎡两室新房,自住简装漂亮极了,尤其阳台让人羡慕,忍不住晒晒
- 45㎡小家是紧凑还是压抑?轻松搞定两房两厅,蜗居也可以很幸福
- 45㎡小家是紧凑还是压抑?轻松搞定两房两厅,蜗居也可以很幸福
特别声明:本站内容均来自网友提供或互联网,仅供参考,请勿用于商业和其他非法用途。如果侵犯了您的权益请与我们联系,我们将在24小时内删除。
