80㎡两室极简,一个人住简单装

文章图片

文章图片

文章图片

文章图片

文章图片

刚需纯南两室户型 , 非常紧凑 , 还好目前是一个人住 , 功能性基本都可以满足 。
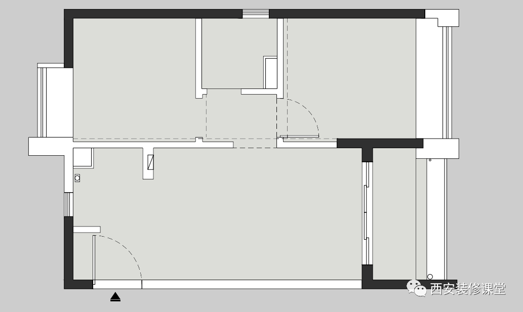
▲入门直对就是非常小的厨房 , 因为太小 , 原始户型就没有封闭 。 客餐厅一体朝南带个很小的阳台;两间卧室中间是唯一的卫生间 。 很常见的格局 , 非常紧凑 , 主卧放床以后已经很难容纳进衣柜 , 次卧亦然 , 而且两个卧室又无法打通拓展空间 , 所以需要至少满足一个卧室的所有功能
▲设计布局图纸 , 进门左手空间与厨房门之间定制鞋柜满足收纳 , 厨房采用L型玻璃门封闭 , 隔离油烟 , 但是并不影响视觉空间的通透;厨房门外放置冰箱;餐桌只能在沙发旁的过道实现 , 虽然小但满足功能;为了实现一个卧室的基本功能 , 砸掉主卧与电视墙的墙体 , 朝外拓展空间 , 实现主卧的衣柜定制 , 这样以后本身很小的客厅就显得更小了 , 不过一个人住 , 客厅倒是可以满足基本的会客功能
▲入门左手厨房与入户之间 , 刚好让推拉门分割 , 实现一个通顶鞋柜的定制 , 满足进门的基本收纳
▲原有开放式厨房保持开放 , 采用玻璃移门进行分割 , 避免油烟问题 。 采光并没有受到影响 , 进门空间光线可以保证一览无余
▲厨房玻璃门关闭状态 , 保证空间光线的通透;利用过道空间布局小的餐桌 , 用来满足一个人的就餐以及办公所需
【80㎡两室极简,一个人住简单装】▲门口的全景视角 , 厨房门外刚好布局冰箱以及少量定制柜的收纳;过道餐桌布局;客厅移位让位给卧室一部分 , 跨度缩小 , 索性不要电视柜以及茶几 , 这样可以视觉上放大空间
▲反过来看全景 , 整体浅色布局 , 因为空间很紧凑 , 大面积浅色可以满足小空间的敞亮和视觉放大;电视墙外移让位给主卧衣柜 , 局部凹陷区电视朝向客厅的收纳柜
▲主卧空间白色与粉色搭配 , 空间尺寸有限 , 侧面无法满足衣柜的定制 , 超级飘窗光线非常好 , 利用侧面墙面展示柜定制
▲粉色背景与白色家具的搭配 , 可以让小空间更简洁清爽
▲次卧书房空间 , 定制一面墙的衣柜满足衣帽间的收纳 , 放了沙发床可以满足次卧功能
▲卫生间简单装修 , 两色瓷砖上下墙层次铺贴即可 , 简单配置 , 一个人使用足够了
- 小户型做收纳别忽略这位置,用得好可多出5㎡,比多打柜实在多了
- 华润昆仑御148㎡ | 新中式风格自然淡雅 诗意端庄的浪漫
- 30㎡小户型大设计,30㎡秒变70㎡,花9万元快活住新家!
- 95㎡北欧风新家,一进门就令人心动!卡座设计省空间又漂亮
- 这个102㎡的家,不仅只有生活的一日三餐,还要有看得见的诗与远方!?
- 坚持极简主义装修,280㎡装完太高级,仅凭一个客厅就圈粉无数
- 夫妻俩把家装成意式极简风,进屋倍感高级,骨子里透着简约大气!
- 90后花25万豪装新房,128㎡全屋轻奢设计,朋友:真优秀!
- 想要做极简衣柜?这些细节才是一柜到顶衣柜的正确打开方式
- 250㎡简约风,细品生活韵味。
特别声明:本站内容均来自网友提供或互联网,仅供参考,请勿用于商业和其他非法用途。如果侵犯了您的权益请与我们联系,我们将在24小时内删除。
