
文章插图
图纸编号 1592
尺寸 面宽 17.0米 进深 12.3米
建筑面积 326.0㎡
设计机构 易盖房殊舍建筑
土建造价 60.0万
项目概况

文章插图
【入户门开在东南位的风水 入户门东南如何布置风水】△总平面示意图
基地情况:
东:村内道路
西:村内池塘
南:村内道路
北:村内道路
项目简介:
业主在项目前期提供了较为详细的场地信息 , 希望在庭院预留多功能休息区 , 并表示喜欢欧式风格的别墅 。设计师根据场地情况 , 及业主的需求和喜好 , 将项目形式确定为双层欧式别墅 。
平面布局
户型概况:
2层 / 4室 2厅 4卫 1储物 1衣帽 1露台

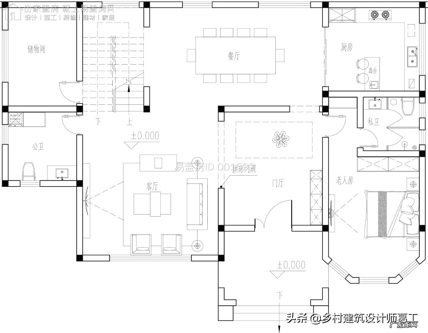
文章插图
△一层平面图
主体建筑中 , 入户位置位于南侧 , 中间部分则为门厅和客厅等公共空间 , 考虑到采光和风水的问题 , 因此建筑师将与过厅相邻的区域进行半开放设计 。

文章插图
△二层平面图
二层以居住待客功能为主 , 共布置3间卧室 , 北侧中部预留了大面积的起居室 , 南侧设置的露台空间 , 既保证了充足的采光 , 又为业主提供了良好的观景场所 。
造型设计

文章插图
△西南侧效果图

文章插图
△鸟瞰图
建筑为欧式风格 , 立面采用大量的暖色真石漆 , 搭配蓝色古都连锁瓦、雕花工艺等欧式元素构件 , 突出整体的精致优雅之感 。

文章插图
△西南侧效果图

文章插图
△东南侧效果图
建筑南侧预留了露台的空间 , 使得建筑的景观功能大大增强;落地窗搭配条窗设计 , 在整体造型上为建筑带来了更多层次变化 。

文章插图
△鸟瞰图

文章插图
△西北侧效果图
庭院预留出室外活动平台 , 搭配多种绿植景观 , 既保证了庭院的实用性 , 又增强了庭院的观赏性 。

文章插图
△东立面图

文章插图
△西立面图

文章插图
△南立面图

文章插图
△北立面图
- 在院子挖大坑为什么不好 庄子面前挖个大水坑风水没事吧
- 千位分隔符怎么输入 千位分隔符怎么打出来
- 制动踏板在哪个位置 制动踏板是啥
- 小笔记本图片高清 小笔记本电脑排名
- 现在泥鳅价格是多少一斤,泥鳅的市场价格多少钱一斤
- 尚书学校在惠州私立排名 私立惠比寿中学成员
- 金融工程在职硕士 金融在职研究生硕士
- 乔家大院在哪个省哪个市哪个县 山西祁县乔家大院简介
- 淘宝旺旺满意度怎么设置?旺旺满意度是什么?
- 电脑一般放在什么位置风水好 电脑主机风水放哪边
特别声明:本站内容均来自网友提供或互联网,仅供参考,请勿用于商业和其他非法用途。如果侵犯了您的权益请与我们联系,我们将在24小时内删除。
