
文章图片
【深色系为主的家居空间,整洁又沉稳,充满质感更能彰显品位】

文章图片

文章图片

文章图片

文章图片

文章图片

文章图片

文章图片

文章图片

文章图片

文章图片

文章图片

文章图片

文章图片
家是我们远离都市喧闹的安静港湾 , 也是我们回归初心的一寸天堂 。 虽然面积不大 , 但是足够的温馨 , 虽然设计简约 , 但是足够的欢快 。 让我们在这个城市里有一个可以让我们落脚的地方 , 不会让我们感到身处异乡的孤独和寂寞 。
深色系为主的家居空间 , 整洁又沉稳 , 充满质感更能彰显品位
房屋户型:两室
房屋面积:98平方米
装修预算:30万
设计师:李文伟
主要建材:线板、木皮、喷漆、大理石、黑铁漆、铁件、玻璃、木地板、壁纸
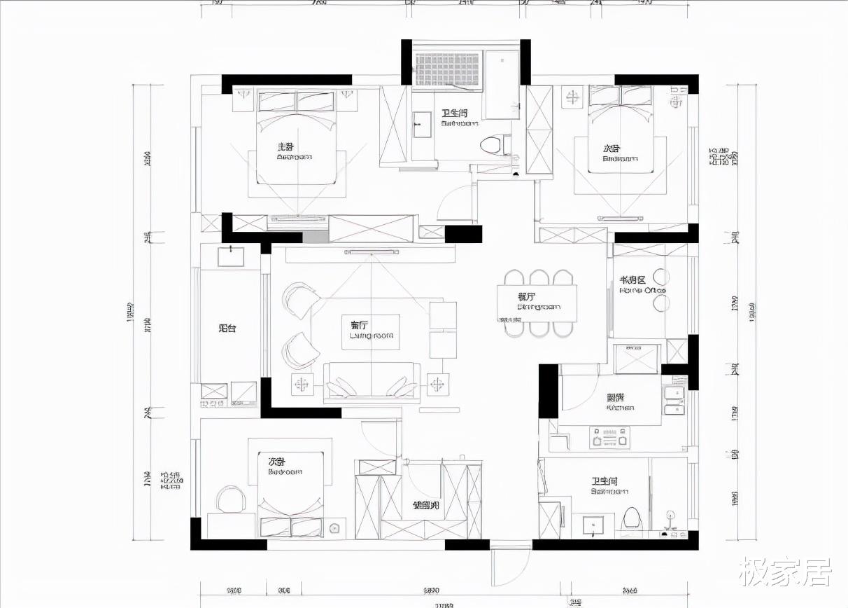
【户型图】
周正的户型结构不需要有较大幅度的变动 , 通过设计师的重新规划 , 明确划分出每一个独立的空间 , 重新设计的厨房和餐厅共享空间 , 一体式布局简洁明快 , 也让空间层次更加丰富立体 。 每一个房间里都有储物区是业主最大的要求 , 也是设计师最关心的要点 。
【客厅】
设计重点:深色系让空间整洁沉稳
客厅主要以深色系为主色 , 简约大气的皮质沙发充满高级复古感 , 搭配定制的电视柜视觉上起到了延伸空间的作用 。
素雅的墙面悬挂线条感十足的挂画 , 窗边的盆景恰到好处的点缀了空间的自然和清透 。 阳光透过落地窗直接照射进来 , 不仅让客厅更加明亮 , 也冲淡了深色的严肃和冷酷 。
特别声明:本站内容均来自网友提供或互联网,仅供参考,请勿用于商业和其他非法用途。如果侵犯了您的权益请与我们联系,我们将在24小时内删除。
