传统风水上讲面宽小进深大的自建房户型更好一点,所以今天给大家分享的这三套户型都是小面宽,大进深 。首先,说说为什么好的户型总是风水上也比较好的,你看看这三套乡村别墅户型,比如一楼,我们现在设计一楼都需要老人房,客厅,车库等,这三套都是南向进门客厅;农村老人一起住,一楼南向要留老人房;车库一定在北侧,与老人房之间一定有楼梯间,洗手间等隔开,以防打扰休息;厨房也会在北侧,并紧邻餐厅;卫生间,一般也在西侧或北侧 。
这三套自建房户型布局超好,面宽10米,符合大部分农村宅基地要求 。仔细看看就知道,南向老人房,卧室,北侧车库,厨房紧邻餐厅,是不是你需要的?外观如果不喜欢,也可以参考平面图布局,找人修改外观效果,保留平面布局 。
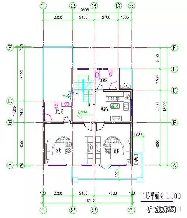
3套农村3层自建房好户型 风水好布局更好-户型1

文章插图
【门口有三栋商品楼的风水 三层楼的风水】

文章插图

文章插图

文章插图
3套农村3层自建房好户型 风水好布局更好-户型2

文章插图

文章插图

文章插图

文章插图
3套农村3层自建房好户型 风水好布局更好-户型3

文章插图

文章插图

文章插图

文章插图
- 有关白鲸的资料 关于白鲸的资料
- 朝天鼻男人对运势有影响吗 朝天鼻的男人好吗
- 7座车宝骏730 宝骏730是七座吗
- 鱼缸净水魔棒有用吗 养鱼净水魔棒真管用吗
- 孩子变更抚养权的具体条件有什么
- 宜字取名男孩有寓意2021 宜字取名男孩有寓意
- 西瓜种子传播方式有哪些 西瓜传播种子的方式
- 看透一切绝情的句子都有哪些
- 哪种花期长 有哪些花期较长的花卉
- 绿皮甘蔗煲汤 黑皮甘蔗可以煲汤吗
特别声明:本站内容均来自网友提供或互联网,仅供参考,请勿用于商业和其他非法用途。如果侵犯了您的权益请与我们联系,我们将在24小时内删除。
