
文章图片

文章图片

文章图片

文章图片

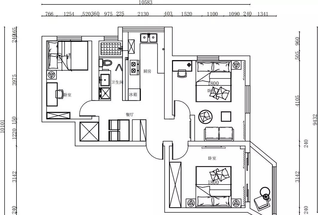
90年代的70平老房 , 比小编的年纪还大 , 那么怎么设计才能打造出更适合现代人居住的空间呢?这套老房最大的缺点就是没有客厅 , 一起来看一下改造的最终效果吧!
整体来说 , 该户型是属于比较规整的 , 除了没有客厅这个缺点以外 , 并没有其他特别困难的地方 , 因此对于设计师来说 , 还是相对比较轻松的 。
由于屋主不想进门就将所有的空间一览无遗 , 所以选用了半高鞋柜结合长虹玻璃作为玄关处的隔断 , 同时也增加了收纳空间 。 而隔断的另一面就是结合了餐厅的卡座设计 , 将空间利用到极致 。
选用U型橱柜与吊柜 , 满足厨房所需的储物空间 , 整体根据动线打造出最适合的空间布局 , 节省时间 , 选用大白墙搭配上彩盘装饰 , 打破单调让厨房倍感清新 。
将次卧与客厅功能结合 , 木地板搭配上蓝绿基调的丝绒家具 , 以及六层书架设计 , 显得轻奢精致 。
这就是次卧的休息区 , 蓝色背景墙让整个空间清新十足 , 再搭配上两个窗户 , 让卧室变得更加通透 。
选用蓝灰色调的乳胶漆当作床背景墙 , 再搭配上简单的石膏线勾勒以及金边复古挂画 , 展现出雅致的休息空间 。
第二个次卧选用灰绿色背景墙 , 搭配上木地板以及精致装饰 , 打造出一个精致清新的空间 。
卫生间采用折叠门实现干湿分离 , 干区白色墙砖搭配上金色壁灯 , 黄铜水龙头、金色把手 , 精致感无处不在 。
【70平老房翻新,客厅装进卧室,华丽变身精致复古小三居】本文内容来源于网络 , 如有侵权请联系删除 , 谢谢!
特别声明:本站内容均来自网友提供或互联网,仅供参考,请勿用于商业和其他非法用途。如果侵犯了您的权益请与我们联系,我们将在24小时内删除。
