发展战略规划,其基本框架包括:公司现状分析、市场环境分析、据此确定的发展方向与重点、各规划的具体实施:人力资源即团队建设、核心经营项目认定、具体行动及时间段,只是,这其实是大公司才需要干的事情,小公司,还是先想想生存的问题吧 。生存下来,才能说得上发展,这时,才需要发张规划 。就小公司来讲,虽然还不需要发展规划,但需要生存计划 。如果你是生产型公司,那么,在产品开发、品质、成本控制、渠道建设等方面需要重点考虑;如果是贸易型公司,那么,需要重点考虑的首先是渠道建设 。然后就是寻找合适的产品,所谓合适,这腰根据你公司定位来,是价高质高的?还是价低质次的等等 。
食品生产企业发展规划应该怎么设计?综合企业生产与需求进行全面系统规划

文章插图
减少后续不断的布局变更导致资金的浪费

文章插图
用经济的方式进行有效生产和管理

文章插图
提高食品安全卫生管理水平等

文章插图
非专业规划的坏处

文章插图
未能系统地满足监管部门、客户等相关方要求
缺乏系统规划造成初期建设不必要浪费
后续硬件重新改造导致直接浪费
给后续食品卫生管理留下缺陷或增加困难
增加生产运作成本(如物流)等
工厂食品卫生规划的原则
◆ 规划设计与食品安卫生管理相结合
◆ 生产流程与布局合理优化
◆ 加工区域的食品卫生等ji合理化
◆ 建筑结构对食品卫生影响最小化
◆ 注重食品卫生设施/设备的细节
◆ 规划设计与生产效率相结合
◆ 人流/物流/气流对食品卫生影响最小化
◆ 交叉污染控制合理化
◆ 确保加工用水/冰/蒸汽的安全卫生
工厂食品卫生规划涉及的内容
◆ 加工产品确认
◆ 生产能力确认
◆ 产品工艺确认
◆ 产品加工流程合理化
◆ 加工区域的食品卫生等ji规划
◆ 生产人流、物流、气流规划
◆ 生产设备选择及食品卫生评估
◆ 生产设备布局规划
◆ 食品接触容器/工器具评估与配置
◆ 食品车间安全卫生设施规划
设施规划
供水、排水
通风、排气
采光、照明
卫生设施与设备
清洗消毒设施与设备
更衣洗手设施与设备
物料传递设施与设备
废料处理设施与设备
清洁工器具配置
装修材料选择与装修建议等
工厂食品卫生规划交客户成果
◆ 工厂食品安全卫生规划设计书
◆ 产品说明
◆ 产品加工流程图
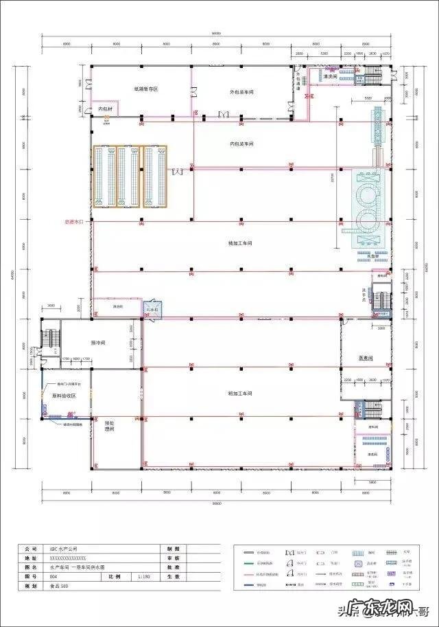
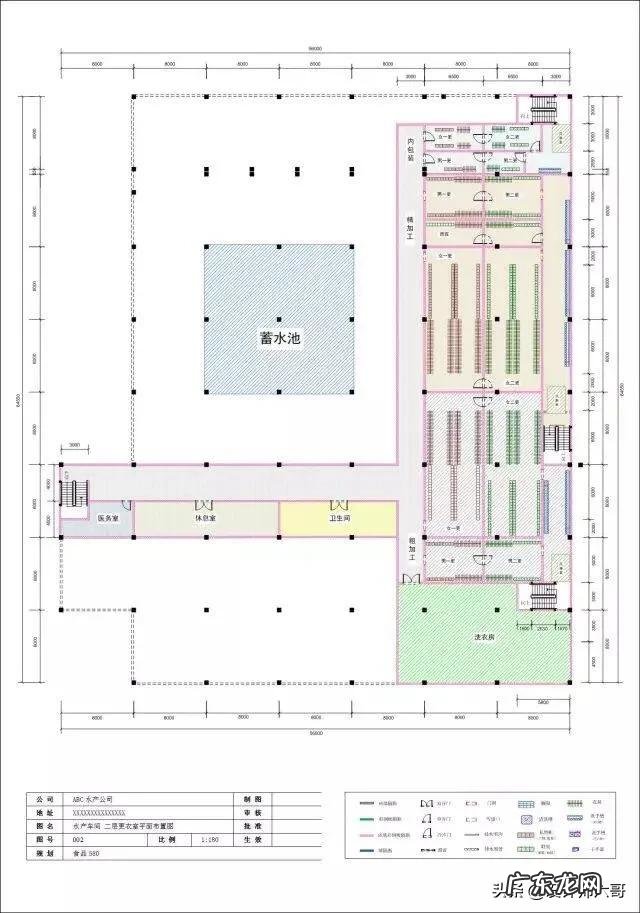
◆ 车间平面布置图
◆ 车间人流/物流图
◆ 车间供水/排水网络图
◆ 车间卫生设施/设备配置建议
【怎样写公司发展战略规划?】◆ 车间照明配置等
- 怎样让本身的狗狗越来越更聪明?试一下那样做!
- 怎样使用em菌给果树灌根的呢?
- 怎样能在10天之内长胖??
- 狗泪痕怎样去除方法
- 普通公司入职体检一般包含哪几项乙肝携带者影响录用吗
- 抖音怎样定向推广引流?如何在抖音进行营销?
- 怎样在拼多多上赚钱?有什么方法?
- 速卖通怎样提高店铺访客?方法有哪些?
- 淘宝标题栏最多允许输入多少个字符?标题怎么写?
- 在月子期间怎样减肥更好?
特别声明:本站内容均来自网友提供或互联网,仅供参考,请勿用于商业和其他非法用途。如果侵犯了您的权益请与我们联系,我们将在24小时内删除。
