装修案例|房子这样装,越看越有品位

文章图片

文章图片

文章图片

文章图片

文章图片

文章图片

简洁的黑白灰空间 , 简洁的深灰色硬包背景 , 没有多余的造型 , 硬包柜子增加客厅的储物空间 。 现代装饰画的设计点亮空间 , 使背景看起来不沉闷 。 开敞式厨房的设计 , 使整个空间更加开敞 , 也很好的利用了自然采光 。 卫生间不同于传统墙砖的拼贴 , 做了一些不一样的设计 , 使两种规格的墙砖竖向铺贴 , 更加有趣 。
【装修案例|房子这样装,越看越有品位】
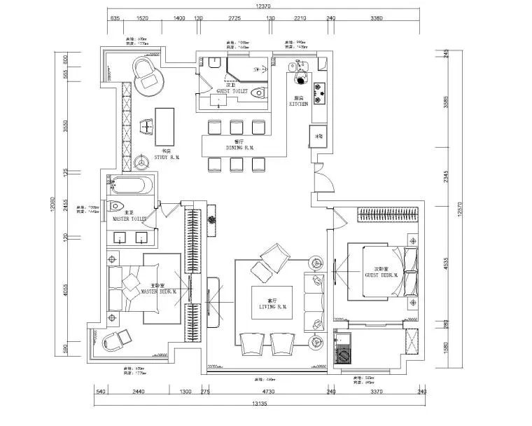
平面布置图
- 喜欢带旋转楼梯的房子,选这款简欧别墅户型 ,给家人一个惊喜
- “你凭啥卖掉小叔子婚房”儿媳:谢谢你装修我的陪嫁房,多卖15万
- 90后夫妻64㎡新房,极简装修,却布置得精致高级,太有品位了!
- 现代风新房装修毕业,装修成本花了30万,亲戚都说我傻,白花钱
- 糟心,装修时师傅误砸了承重墙,这样补救靠得住吗?
- 典雅的新中式装修风格,是现代豪华生活与永恒价值相结合
- 装修合同没仔细看,因为这8个“含糊不清”多花了钱,太冤枉了
- 装修真的难吗?有什么装修技巧?
- 从事装修11年,揭秘装修公司“11宗罪”,不是胡说八道而是事实
- 131平现代风三居室,每一个房子都是一个完美的故事
特别声明:本站内容均来自网友提供或互联网,仅供参考,请勿用于商业和其他非法用途。如果侵犯了您的权益请与我们联系,我们将在24小时内删除。
