97平北欧风三居室,客厅整面落地窗将光线引入室内,大气通透

文章图片

文章图片

文章图片

文章图片

文章图片

北欧风格深受年轻一族的追捧 , 小编手中有一个这种风格的装修案例 , 97平三居室 , 的装修方式 , 一共花了13万 , 我们看看实际的装修效果 , 同时也给大家分享一些装修注意事项 。
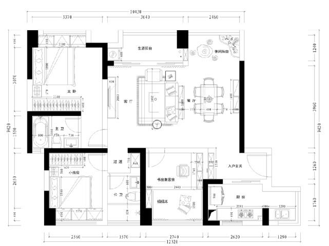
1、把冰箱规划在挨着生活阳台最近处 , 这样可以设计更长的橱柜空间 , 厨房门改成双推门 , 空间更加通透 。 2、书房设计成灵活变动空间 , 设计两扇外挂谷仓门 , 使客餐厅与书房连成一块 , 空间更加宽阔 , 采光也得到最大的补充 。 3、主卧 , 主卫及儿童房空间同时进行调整 。 主卫在保持正常功能的同时 , 对主卫的合理空间压缩 , 利用主卧和儿童房空间门洞的调整 , 把储物与床位置的设计合理地规划出来 。
客厅空间较为宽敞 , 整面的落地窗 , 最大化地将光线引入室内 , 大气通透 。
根据餐厅与客厅分割线的位置 , 设计了实木操作柜 , 无处安放的日常生活零碎终于有了归宿 , 同时又明确划分餐厅与客厅两个空间 , 干净整洁 。
靠近内侧的墙面统一刷成蓝灰色 , 设计了柠檬黄的书房门 。 柠檬黄色彩鲜艳与墙面相互映衬 , 和谐美观 。 关闭的时候 , 可以当做墙面装饰品 , 打开之后 , 就会发现其实它也是书房门 。
电视背景墙 , 采用白色文化砖进行铺设 , 素白雅致 。 再配以挂画与绿植 , 清新自然 。
卧室装修由于居住主体的不同配色也有所不同 。 主卧室装修宜采用木地板温馨惬意最合适 。 次卧一般是老人居住所以同样要温馨同时还要考虑老人的行动方便和喜好等 。 卧室的照明要求不多但要注意卧室不宜采用向下射的灯具宜用照顶的灯光 。
主卧以灰白为主色调 , 搭配局部的淡蓝软装 , 同时以原木色中和 , 整体色彩温和清雅 。
在距离地面30mm的高度 , 做了新风口——墙新风 , 将新鲜空气由地下送入室内 , 经过顶部的风口将室内的污浊空气排出室外 , 即便不开窗户 , 室内空气照样新鲜如初 , 深受注重生活品质的人们的喜爱 。
卫生间地面建议铺地砖 , 方便又耐用 。 可以选择国产地砖 , 无论是质量还是时尚度都与国际接轨 , 并且性价比更高 。
淋浴区和洗漱区分开设计 , 悬挂的海星贝壳浴帘起到视线遮挡的作用 。 入墙式的壁龛 , 可以放置洗漱用品 , 节省空间而且实用性强 。
餐厅照明以吊灯为主 , 灯光要柔和 , 这样吃饭的气氛好 , 还能促进家庭人员的情感交流 , 白炽灯是比较好的 , 切忌灯光不可以直接照射在用餐人的头部 , 这样会影响吃饭人的心情 。
餐厅的整体空间小巧紧凑 , 布局方正 , 采光充足 , 通风透气 。
米白色的三人位沙发 , 辅以马卡龙色彩的天鹅绒抱枕 , 旁边还有一张薄荷绿的单人座椅 , 芒果黄的小圆桌 , 整个配色清新和谐 , 非常好看 。
- 装修155平米三居室,极简风格,全屋使用\大白墙\,采光效果级棒
- 98平北欧风设计,让空间充满自然惬意的气息,令人舒适又轻松
- 杭州90后小夫妻,爆改80㎡北欧风三居室,温情满满真佩服
- 盖一栋与众不同的房子,简欧风格式合院住宅,引领新时尚!
- 木之春晓:一篇文让你拥有一个北欧风的家
- 整体建筑上非常简约,没有太多装饰,尽显简欧风范
- 108平美式风三居室,以暖色调为主平时在家看看书写写字好惬意
- 告别黑漆漆,这样敞亮的阁楼公寓,适合喜欢清新北欧风的你
- 65平北欧风格小户型装修,超温馨的两室一厅,生活就是这么简单!
- 110平米的北欧风新房,装修设计轻奢时尚,邻居都来取经了
特别声明:本站内容均来自网友提供或互联网,仅供参考,请勿用于商业和其他非法用途。如果侵犯了您的权益请与我们联系,我们将在24小时内删除。
