
文章图片

文章图片

文章图片

文章图片

文章图片

文章图片

文章图片

文章图片
齐家小灵儿今天分享的这套127平的北欧风三居室耐看且实用 , 客餐厅长吧台的设计完美证实了这一点 。 整个家居中 , 最推荐给大家的是置物架 , 小物件大作用 , 能完美的将收纳变成很简单的一件事 , 并且是在不影响美观的情况下 , 真的很实用!
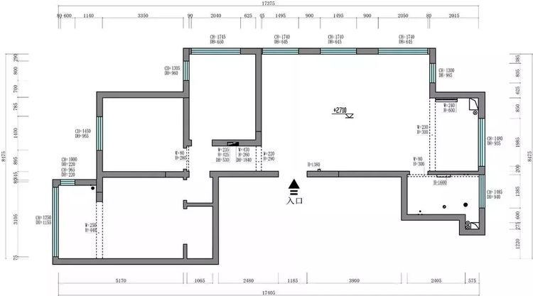
▲ 原始户型图
▲ 平面布置图
客 厅
▲ 客厅选用了浅灰色的布艺沙发搭配木质小桌子 , 温暖又舒适 。 客餐厅的窗户也是一个亮眼的点 , 三扇大落地窗 , 增加了整个室内空间的通透度 。
▲ 电视背景墙上设计了一些置物架 , 用于摆放装饰品和收纳物品 , 很适合小客厅 , 相当实用 。
餐 厅
▲ 客餐厅中间用长吧台进行了阻隔 , 用法很巧妙 , 不仅分隔了两个空间 , 还保证了美观和收纳功能 。 侧边的墙面还做了餐边柜 , 与入户鞋柜连在一起 , 省空间 , 超实用!
▲ 餐边柜中间的岛台上摆放了一些可爱的装饰品和日用小电器 , 木屑做背景 , 铁艺网格上可以挂上自己喜欢的东西 , 可随心创造出一面属于自己的DIY背景墙 。
▲ 餐桌与吧台的中间还摆了两张高脚椅 , 夫妻俩没事的时候坐在这里喝喝咖啡 , 看看电视 , 聊聊天 , 想想就很美好呢 。
▲ 餐厅的另一面墙让我看到了父母为孩子的成长精心做的准备 , 专门设计黑板墙 , 可以帮助孩子打开智慧大门 。
厨 房
▲ 厨房与餐厅之间采用黑框玻璃门进行阻断 , 随时能够看清厨房里的情况 , 使得整个厨房更加通透 , 更利于家人之间的交流互动 。
▲ 与外界之间用的也是黑框玻璃窗 , 大面积的窗户让整个厨房变得更明亮 。
▲ 个性墙砖拼凑成八角叶的模样 , 为厨房增添了一些观赏性 。 原木色的U型橱柜 , 更能在厨房里自由的发挥 。
主 卧
▲ 主卧的主色调为浅蓝色 , 衣柜的谷仓门也迎合了整个空间的色调 , 充满年轻活力的气息 。
▲ 床头背景墙上是一块多色的几何拼接图案 , 简约不失潮流气息 。
儿 童 房
▲ 儿童房的颜色也是精心挑选的 , 粉色的基调是大部分女孩子的最爱 , 这个粉色木质上下铺床也是让孩子对少女心的一份保留 。
▲ 白粉色的私人小衣柜 , 与上下铺是一套的 。
卫 生 间
▲ 卫浴间干湿区分离很明显 , 干区采用了非常方便实用的置物架 , 解决了日用的收纳;淋浴区的花砖灵动有活力一般 , 对面的壁龛摆放着洗浴品非常方便 。
- 晒晒我的95平新家,温馨舒适,却被亲戚吐槽装修太廉价!好无奈
- 韩国的军事力量达到世界大国水平了吗
- 通勤必备神器,地平线8号无界双肩包带来舒心、便携的体验
- 水电装完发现问题了,电线抽都抽不动,真是被横平竖直坑惨了!
- 郭靖就是资质平平,为什么很多人却不认可呢
- 外表平平无奇,用途却可以直接封神的10大家居品,真的太能打了
- 新房装好,邻居看一眼就急了,吵着回家重新装,说我家大她20平方
- 48平方米的“大单间”设计,实木装饰温馨,现代风格好看又实用
- 晒一晒140平大房子,邻居们说咱小区找不出更漂亮的了,超开心
- 看她家套内60平小窝,全屋简单又漂亮,一进屋就被入户玄关迷住
特别声明:本站内容均来自网友提供或互联网,仅供参考,请勿用于商业和其他非法用途。如果侵犯了您的权益请与我们联系,我们将在24小时内删除。
