
文章图片

文章图片

文章图片

文章图片

文章图片

文章图片

文章图片

文章图片

文章图片

文章图片

文章图片

文章图片

文章图片

文章图片

文章图片

文章图片

文章图片

文章图片

文章图片

文章图片
90后文艺女青年的日式小家 , 60㎡空间自成一派 , 随性又自由
业主是一位典型的90后文艺女青年 , 和大部分人北漂的年轻人一样 , 业主日常的工作压力非常大 , 大部分的时间都是在工作之中 , 很少有时间放松下来 。
去年业主在北京郊区买下了一套60平方米的房子 。 他希望能够把自己的家打造得足够轻松和简单 , 能够充满度假的情调 。 让自己在繁忙的工作之余 , 可以真正有一个休闲的场所 。
房屋户型:两室
房屋面积:60平方米
装修预算:25万
所在城市:北京
主要建材:线板、木皮、喷漆、大理石、黑铁漆、铁件、玻璃、木地板、壁纸
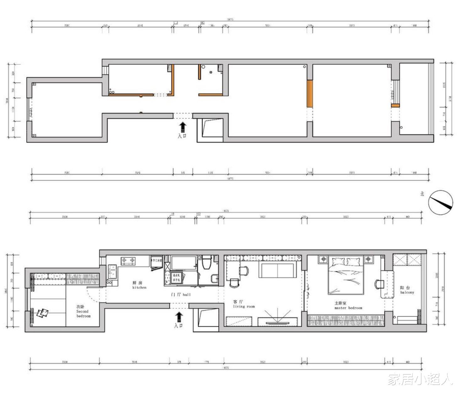
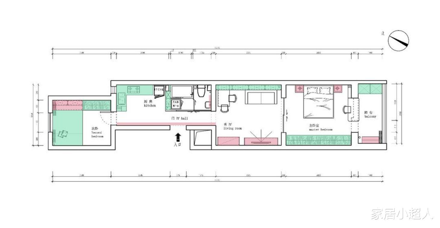
【户型图】
一:房屋户型比较周正 。 采光丰富 , 每一个功能区的面积还算合理 。
- 菡萏怡景装饰 | 温馨与浪漫 ,90后温情现代轻奢之家
- 95后产妇月子里胖了20斤,不影响母乳的情况下如何减脂不减奶
- 老公坚持不做吊顶,不做电视墙,完工后,发在朋友圈,差点炸锅了
- 偷看“不健康网站”,删除记录也没用,这3个后果你承担不起
- 她坚持在卧室做“Z形”隔断,家人起初反对,完工后都夸赞不已!
- 崇祯帝殉国前,为何要逼死庶母、皇嫂、皇后,砍死砍伤两个女儿
- 怀孕36天吃了感冒药会有什么后果
- 怀孕36天吃了感冒药会有什么后果
- 断奶后什么时候适合减肥呢
- 她拒绝“样板房”,坚持“实用主义”,完工后,被很多朋友夸赞
特别声明:本站内容均来自网友提供或互联网,仅供参考,请勿用于商业和其他非法用途。如果侵犯了您的权益请与我们联系,我们将在24小时内删除。
