
文章图片

文章图片

文章图片

文章图片

文章图片

文章图片

文章图片

文章图片
【套内60㎡新房,绝美法式风格,气度和质感并存,堪称小户型的典范】

文章图片

文章图片

文章图片
设计始终来自对自身生活的觉察 。 谈及一室一角的安排 , 本案以壁炉为主轴 , 因为窝在柴火前 , 放松独处一直是屋主的向往” , 于是利用“2+1”房格局 , 盼能在都市丛林中拥有一处专属休憩所 。
放眼望去 , 少了法式华丽气息 , 却是完美承袭了一份从容自如 , 正因设计上淡化了古典风过于奢华、冷冽之气 , 留住轻盈简约调性;只取线板与金属配件局部装饰细节 , 现代语境则交由灰色调涂料及四种天然石材铺陈 。
设计不只是撷取风格里经典的符码 , 还要真正切合习惯 , 尤其住在大楼中 , 天地墙是彼此共享的 。 加强隔音之余 , 也针对环境湿气以硅藻土确保屋内干爽舒适 , 甚至运用无缝、耐磨、易清洁建材 , 让优雅真正付诸于日常 。
“半弧简化了古典雕花线板 , 衍伸出带有现代感法式风韵 , 成为本案琴房拱门的重要象征 。 ”整体为了强化主景、试图扩大柔美意象 , 也将弧线用于修饰横梁或转角 , 如同玄关转角处穿鞋椅 , 以柔和笔触贯穿全屋 。
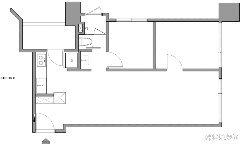
户型图原始户型 , 套内60㎡ , 两房一厅格局 , 常住一人一狗 。 现有格局 , 不符合屋主对居住环境的期待 。
< 屋主需求 >? 偏好简约法式风格 , 喜欢大理石和线板;
? 一定要有更衣室、浴缸和壁炉;
? 需要一间单独的书房 , 作为个人专属空间;
? 重视收纳机能 , 偏好画面简洁的封闭柜;
? 选用宠物友善、好整理维护的建材 。
玄关设计推门而入 , 雕花线板随着视线层层迭高 , 摊开精美无暇的迎宾之景 。 为了给予厨房更大使用空间 , 挪移鞋柜重塑玄关尺度 , 以窄长落尘区 , 同石纹地砖延展回家进程 。
此外 , 玄关柜采用双面柜形式 , 利用柜体中段延伸出厨房L型料理台 , 而于鞋柜一侧则覆上烤漆玻璃 , 当作留言板 , 巧用地利优势 , 不忘在穿脱鞋子之际 , 再次提醒自己一日的待办事项 。
- 【鲁班装饰】纳东花园146㎡现代简约风格,自在之境。
- 刚装修完的新房怎么除甲醛
- 她用家里阳台1㎡空间,打造隐藏式洗衣房,真的太精致了,羡慕
- 600㎡自建房,都市生活的现代之美,让生活更有温度
- 她家162㎡,一进门客厅就把我迷住!全屋时尚高级,挑不出毛病
- 72㎡小户型也能做3房2卫,简约风格设计真温馨,虽然有些挤却特别实用
- 好心帮儿子儿媳装修新房,没花他们一分钱,最后却被儿媳吐槽!
- 85㎡两室旧房改造,三口日式温暖家
- 新房装修防水怎么做需要楼下看吗
- 电梯房二楼下水道容易堵吗
特别声明:本站内容均来自网友提供或互联网,仅供参考,请勿用于商业和其他非法用途。如果侵犯了您的权益请与我们联系,我们将在24小时内删除。
