
文章图片

文章图片

文章图片

文章图片

文章图片
今天齐家小菜分享一篇112㎡的现代简约风案例 , 为了满足屋主对于收纳要求 , 设计师利用走廊、阳台、客餐厅、卧室等地方 , 做了全屋收纳 。
【这套112㎡简约风三居室,真的长在了我的审美上!】
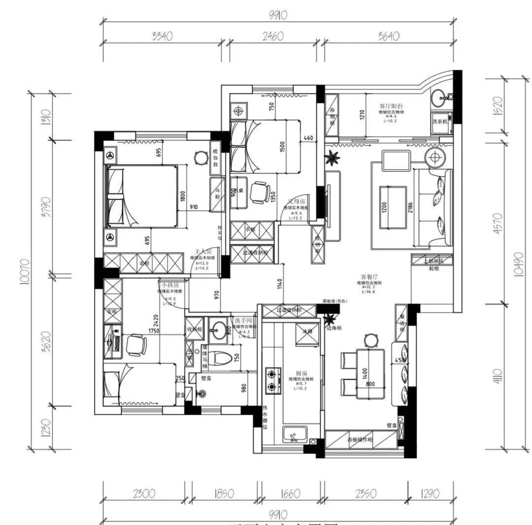
▲平面布置图
玄关
入户见厅 , 设计师便在客厅与玄关间的鞋柜做了矮柜+栏栅式做为隔断 , 既避免尴尬又保证了采光 。
客厅
鱼骨木质板拼接的电视背景墙 , 浅灰色的布艺沙发搭配灰色系的哑光砖 , 几何形的拼色地毯做装饰 , 使整个客厅给人一种轻松、舒适的感觉 。
客厅阳台
客厅阳台打通 , 做了封闭式处理 , 阳台设计一侧布置摆放的洗衣机+洗手台 , 另一侧则做了L型收纳柜 , 空白地方铺设卡通花砖 , 更加有童趣艺术感 。
餐厅
入户左侧为餐厨空间 , 与客厅被走廊分割成两个不同空间区域 , 但是设计风格还是使用灰色亚光砖 , 灰色背景墙 , 收纳空间除了最外侧的斗柜 , 还在紧靠窗位置设计了矮柜+吊柜+嵌入开放格组合式的收纳柜 , 来解决餐厅收纳 。
厨房
厨房比较宽敞 , 做了L型橱柜布局设计 , 白色柜体+灰色台面+整墙白色瓷砖+灰色哑光地砖+金属质感的把手搭配 , 整体清爽干净 。
走廊
由客厅前往卧室有个空间不小的走廊区域 , 设计师利用嵌入式的柜体 , 做了两个收纳柜 , 白色柜中间用木色板做嵌入开放格 , 增加收纳储物空间外 , 整体色调更加柔和 。
主卧
主卧背景墙同样用了灰色系 , 搭配灰色门板的嵌入式衣柜设计 , 整体性更强 , 金属质感壁灯+一大一小的挂画+胡桃木的床头和床头柜设计搭配 , 显得整个空间非常精致 。
儿童房
儿童房依旧是选择灰色墙面+灰色门板嵌入式衣柜设计 , 使用木地板和原木家具的衬托下 , 整体空间多了一些温暖柔和的感觉 。
卫生间
卫生间浅灰色地板搭配白色大理石墙砖 , 拉伸空间视觉感 , 蓝灰色浴室柜+同款镜柜 , 使整个空间在干净简洁的基础上更加雅致 。
- 这才是“神设计”,60㎡,一室改三室,三代人居住都不拥挤
- 没有客厅,不要沙发,把50㎡装成两室,堪称小户型“设计天花板”
- 奋斗21年才买的560㎡别墅,“砸”200万装修,尤其院子漂亮极了!
- 老公20万装82㎡小家,通体白墙太穷酸,床头柜都是乡下捡来的!
- 95㎡两室奶油风,婚房好温柔
- 【鲁班装饰】曼城155㎡日式原木风格,与风和畅
- 等我赚钱了,也要买20㎡的小户型,就照她家这样装修,高级又温馨
- 【鲁班装饰】实力心城140㎡现代风格,独立美
- 不追求花里胡哨,客厅丢掉茶几、电视柜,100㎡入住5年,宽敞舒适
- 85后老师的独居生活,住113㎡那叫一个爽,拍照给大家瞅瞅
特别声明:本站内容均来自网友提供或互联网,仅供参考,请勿用于商业和其他非法用途。如果侵犯了您的权益请与我们联系,我们将在24小时内删除。
