
文章图片

文章图片

文章图片

文章图片

文章图片

文章图片

文章图片

文章图片

文章图片

文章图片

文章图片

不是只有大房子住才住的体面舒服 , 有幸福感 , 小房子设计的好也能一样可以 。 来自宝岛台湾的90后美女作家——小小 , 把自己仅22㎡的小家 , 设计成人人都羡慕的温馨精致小窝 , 让蜗居也能成为一件很体面的事 。
改造前户型图
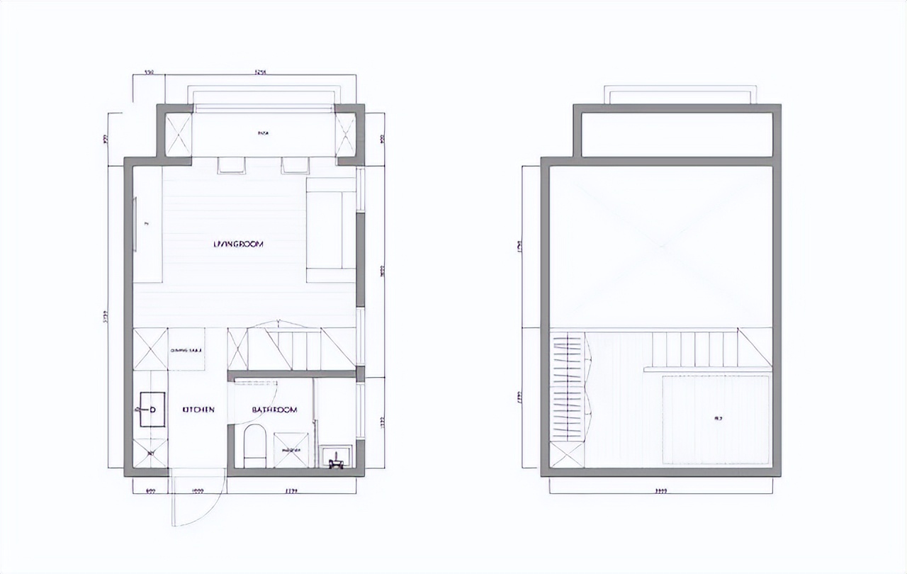
改造后户型图
这套22㎡的迷你公寓 , 向我们展示了设计家的魅力 , 用橡木搭配纯白的漆面 , 营造简单、温馨的空间
两块桌面通过不同的组合模式 , 形成不一样的场景模式
横排摆放的时候 , 充当了一个简单的书桌
竖排长条形陈列时 , 形成了一个简易餐桌
与墙边的沙发结合在一起 , 又变成了一个小型客厅 , 而在沙发的两边的墙壁上 , 镶嵌了几块木面 , 便于一些小东西的放置
白漆面的大橱柜上 , 设置了一个长条形的木格储物柜 , 顺着黑铁的扶手梯而上 , 便能自由地放置一些杂物 , 而扶手梯在某一种程度上 , 还可以充当衣服架的功能
白色橱柜
除了正常的厨房储物柜 , 在操作台与储物柜的中间 , 还特意陈设了一个木条板 , 便于放置一些时常用到的厨房用品
在厨房操作台的下方 , 将洗衣机和冰箱内嵌进去
3.3米的挑高 , 完全有空余空间在上方设置一个隔层 , 形成了一个半封闭的卧房
一个简单的床体空间 , 在木板上还设置了两盏灯饰
自上而下看 , 空间仍旧十分整洁
隔层的空间里 , 除了一个卧房 , 还有一个陈列在储物柜旁 , 微型的书房空间 , 台灯内嵌在墙壁上 , 简易的台面与橱柜相衔接
卫生间则在卧房的下方 , 利用手推移门将厨房与其隔开
为了降低浴厕空间湿度 , 在基本的弹泥涂布外 , 设计师在浴室瓷砖填缝处及地壁的粗底沙浆 , 添加了乐土的产品 , 有效提高地壁疏水性并保持透气性
- 厉害了!设计师爆改60平小户型,两房立马变三房,能住一家五口
- 82平米小户型复式楼 开放式空间设计 视野更开阔
- 110㎡二手房改造,两室现代混搭
- 储物空间不够用?把小户型的电视背景墙利用起来
- 180㎡古典美式, 别致布局端庄矜贵
- 60平小户型装出90平效果?据说,这套案例连设计师都不愿透露!
- 68㎡现代北欧,深色系的简约空间,热情与温情的交织
- 115㎡三房简洁装修,北欧风超级有格调!省钱好看
- 韩国夫妻爆改120㎡老房,给孩子一个梦幻乐园,享受童话般的生活
- 00后装修260平大平层,客厅准备了一盏钓鱼灯,看起来超舒服!
特别声明:本站内容均来自网友提供或互联网,仅供参考,请勿用于商业和其他非法用途。如果侵犯了您的权益请与我们联系,我们将在24小时内删除。
