
文章插图
次卫一角

文章插图
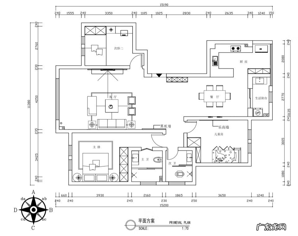
平面设计图

文章插图
- 蜂巢游戏 打蜜蜂游戏
- 帧数低是什么原因 打游戏帧数低怎么办
- 脸上被打出淤青怎么快速消除 打的淤青怎么快速消除
- 疫情后做什么小生意合适?做小生意好还是打工好?
- 快速缓解打嗝的小妙招 婴儿打嗝怎么办怎么止嗝
- 手机版大型打猎游戏 真实打猎游戏
- 战网打不开有小图标 战网打不开了
- 打蛋器使用方法图解 手动打蛋器怎么用
- 剑网三大攻防多少人 剑网三攻防怎么打
- 爱普生和惠普家用打印机哪个好 惠普家用打印机热销型号
特别声明:本站内容均来自网友提供或互联网,仅供参考,请勿用于商业和其他非法用途。如果侵犯了您的权益请与我们联系,我们将在24小时内删除。
