3套实拍农村别墅附平面图, 第1套被赞, 第3套太丑了
----3套实拍农村别墅附平面图 第1套被赞 第3套太丑了//----
----3套实拍农村别墅附平面图 第1套被赞 第3套太丑了//----
----3套实拍农村别墅附平面图 第1套被赞 第3套太丑了//----
----3套实拍农村别墅附平面图 第1套被赞 第3套太丑了//----
----3套实拍农村别墅附平面图 第1套被赞 第3套太丑了//----
----3套实拍农村别墅附平面图 第1套被赞 第3套太丑了//----
----3套实拍农村别墅附平面图 第1套被赞 第3套太丑了//----
----3套实拍农村别墅附平面图 第1套被赞 第3套太丑了//----
现在城里买房 , 首付没有个好几十万根本下不来 , 付完首付每个月还要还贷款 , 还有各种物业取暖费用一年少说也得上万块 。 如果在老家有块宅基地 , 还不如实实在在的盖一栋农村别墅来的实在 , 住的舒服又安心 , 比城里要好多了 。
不过在农村盖别墅最重要的还是经济实用 , 下面3套农村别墅外观都挺美观大气的 , 但是第3套别墅的内部布局却差强人意 , 被很多人吐口水了 。
第1套
这套房子 , 建筑面积410平方米 , 土建35万 , 全部家电家具弄好 , 花了100万出头 , 外墙做的红色文化石 , 罗马柱刷漆 , 二层、三层都有露台 , 住起来还是很舒适的 。
小院做了不少绿化 , 为了方便 , 平时晒衣服就在小院了 。
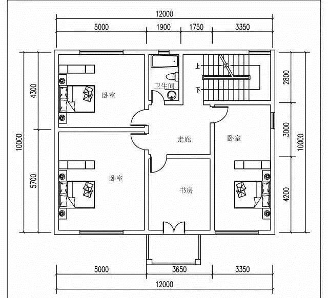
平面户型图
一层餐厅、客厅都做的比较大 , 而且阳面做了两个卧室 , 带内卫的给常年在家的老人住 , 生活方便很多;另外一个卧室虽然不是套间 , 但是也紧邻卫生间 , 起居同样方便 。
特别声明:本站内容均来自网友提供或互联网,仅供参考,请勿用于商业和其他非法用途。如果侵犯了您的权益请与我们联系,我们将在24小时内删除。
