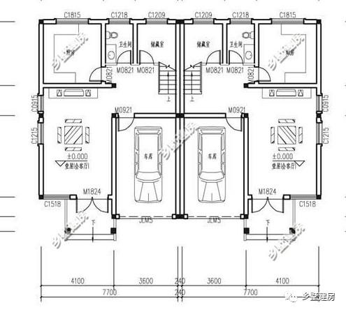
让家庭更加和谐的户型, 两户一楼的别墅, 农村最实用!

让家庭更加和谐的户型, 两户一楼的别墅, 农村最实用!

----让家庭更加和谐的户型 两户一楼的别墅 农村最实用!//----

让家庭更加和谐的户型, 两户一楼的别墅, 农村最实用!

----让家庭更加和谐的户型 两户一楼的别墅 农村最实用!//----

让家庭更加和谐的户型, 两户一楼的别墅, 农村最实用!

特别声明:本站内容均来自网友提供或互联网,仅供参考,请勿用于商业和其他非法用途。如果侵犯了您的权益请与我们联系,我们将在24小时内删除。