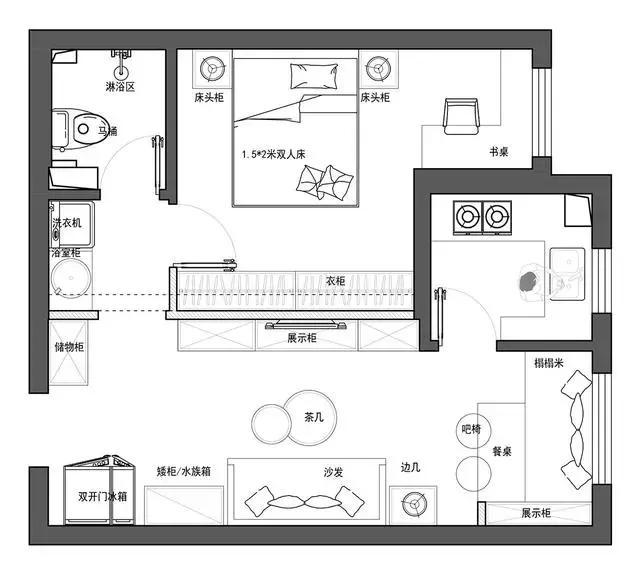
50平小清新北欧风单身公寓设计, 软装硬装全下来才15万, 很有格调

50平小清新北欧风单身公寓设计, 软装硬装全下来才15万, 很有格调

----50平小清新北欧风单身公寓设计 软装硬装全下来才15万 很有格调//----

50平小清新北欧风单身公寓设计, 软装硬装全下来才15万, 很有格调

----50平小清新北欧风单身公寓设计 软装硬装全下来才15万 很有格调//----

50平小清新北欧风单身公寓设计, 软装硬装全下来才15万, 很有格调

特别声明:本站内容均来自网友提供或互联网,仅供参考,请勿用于商业和其他非法用途。如果侵犯了您的权益请与我们联系,我们将在24小时内删除。