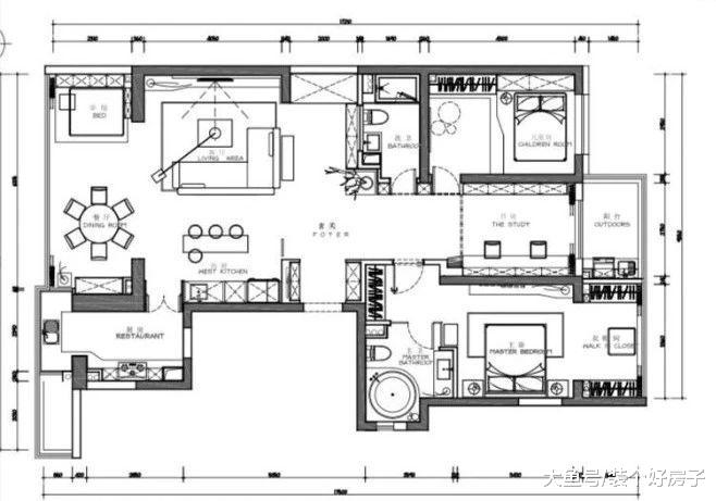
她亲手打造出与井柏然同款的家, 在书墙里藏下卧室和书房!

她亲手打造出与井柏然同款的家, 在书墙里藏下卧室和书房!

----她亲手打造出与井柏然同款的家 在书墙里藏下卧室和书房!//----

她亲手打造出与井柏然同款的家, 在书墙里藏下卧室和书房!

----她亲手打造出与井柏然同款的家 在书墙里藏下卧室和书房!//----

她亲手打造出与井柏然同款的家, 在书墙里藏下卧室和书房!

特别声明:本站内容均来自网友提供或互联网,仅供参考,请勿用于商业和其他非法用途。如果侵犯了您的权益请与我们联系,我们将在24小时内删除。