绿地中央公园148四房/136三房怎么装更好?小细节会带来一生好体验
----绿地中央公园148四房/136三房怎么装更好?小细节会带来一生好体验//----
----绿地中央公园148四房/136三房怎么装更好?小细节会带来一生好体验//----
----绿地中央公园148四房/136三房怎么装更好?小细节会带来一生好体验//----
----绿地中央公园148四房/136三房怎么装更好?小细节会带来一生好体验//----
----绿地中央公园148四房/136三房怎么装更好?小细节会带来一生好体验//----
----绿地中央公园148四房/136三房怎么装更好?小细节会带来一生好体验//----
----绿地中央公园148四房/136三房怎么装更好?小细节会带来一生好体验//----
----绿地中央公园148四房/136三房怎么装更好?小细节会带来一生好体验//----
本期推荐
城市:南昌
楼盘:绿地中央公园
户型:三居室/四居室
横厅户型?大三房?大四房?话说都是好几万的房子 , 怎能不好好装?今天咱们就来看看2019年交房的绿地中央公园小区经典主力户型大四房大三房装修设计 , 邻居家都是怎么做的?为什么不是别的方式 , 看看是否能给您一些灵感 。 百家百样 , 不同的家庭审美标准和居住需求都会有所差别 , 你家会考虑怎样装?看完再做决定吧 , 2020最靓的家 , 看你的了!
四居室
方案一:
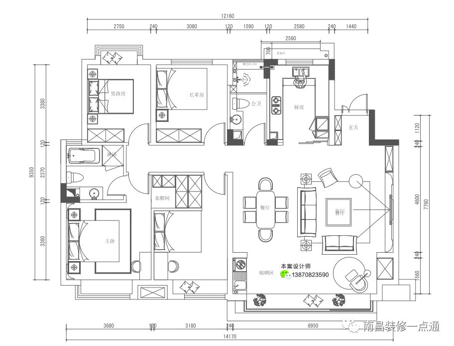
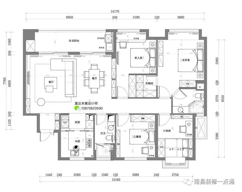
绿地中央公园148平四房
风格:新中式偏日式
方案点评:新中式风格中的日式派系想必大家已经不陌生了 , 原木+留白能带给人一种心旷神怡的放松感 , 另外辅以石、竹、水墨元素后 , 另不言而喻的中式韵味气质中多了层日式味道 。 原始户型入户不够开阔?休闲阳台的功能不够专属和强化?房间的多功能基础上还可以更灵活?储物不喜欢拐角太多?那您必须看看这套方案的布局 , 明朗、通透 、雅韵 。
特别声明:本站内容均来自网友提供或互联网,仅供参考,请勿用于商业和其他非法用途。如果侵犯了您的权益请与我们联系,我们将在24小时内删除。
