这是我见过最小的户型,全屋不到30平米,完工后火遍全小区
----这是我见过最小的户型 , 全屋不到30平米 , 完工后火遍全小区//----
----这是我见过最小的户型 , 全屋不到30平米 , 完工后火遍全小区//----
----这是我见过最小的户型 , 全屋不到30平米 , 完工后火遍全小区//----
----这是我见过最小的户型 , 全屋不到30平米 , 完工后火遍全小区//----
----这是我见过最小的户型 , 全屋不到30平米 , 完工后火遍全小区//----
随着房价的上涨 , 越来越多人买房时都选择小户型新房!其一小户型面积不大 , 所需的装修和购房预算少 , 其次小户型内部空间小 , 生活中清洁全屋花费的时间也少 。 但通常我们印象中的小户型也有50~60平米左右 , 那么全屋不到30平米的户型你见过吗?
30平米是什么概念呢?或许对一些大点的户型而言 , 30平米就是一个阳台的大小 , 但就是这样小的一套新房 , 完工后却火遍了整个小区!全屋小巧精致 , 样样俱全堪称小户型设计的“典范” 。
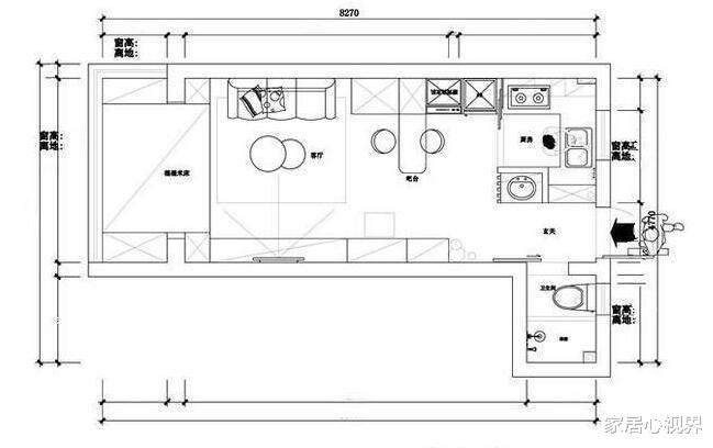
如图所示 , 从入户到阳台的进深只有8.2m左右 , 但却依次布置了厨房、吧台、客厅及卧室多个使用空间 。 屋主将厨房和卫生间布置在了入户两侧 , 内部空间利用到了极致 , 装修非常的大气美观!下面一起来看看实景照片吧 。
入户玄关
入户玄关是进入家里的第一空间 , 所以收纳和换鞋区是必不可少的!本案例玄关的储物区设计在右侧 , 鞋柜采用嵌入式设计 , 上部是封闭式柜门储物区底部留空设计置物架 , 既美化了空间又留宽了过道 , 以白色为主的色彩搭配也增添了几分明亮感 。
顺着玄关往里走 , 整个房间的布局一览无遗!正对入户左侧是电视墙和餐边柜 , 右侧依次设计了吧台、沙发区和卧室区 。 小巧的空间得到了充分利用 , 虽然布局紧凑 , 但各种使用功能齐全 , 能满足基本的生活所需 。
来看右侧的吧台和储物柜 , 吧台是折叠式设计 , 平时可以隐藏到柜体内为厨房到客厅留出过道 , 需要时将台面放下来就能代替餐桌 , 一举多得!
吧台右侧有一个小巧的客厅 , 客厅装饰十分素雅 , 以白色为主搭配小体量的家具和平顶 , 让整个空间看上去更显宽敞!客厅背景墙造型简单 , 墙面通刷大白墙 , 将通透明亮的气质体现得淋漓尽致 。 客厅电视柜和沙发中间铺放了地毯 , 尽显小清新风格 。
厨房内布局也很简洁 , 墙面地面通铺白色瓷砖 , 搭配瓷白色吊柜和橱柜 , 将简约风整洁休闲的气质展露无余!虽然厨房空间小 , 但洗切炒的动线布局依然明朗 , L形吊柜和橱柜也带来了充足的收纳区 , 让日常使用更加方便 。
特别声明:本站内容均来自网友提供或互联网,仅供参考,请勿用于商业和其他非法用途。如果侵犯了您的权益请与我们联系,我们将在24小时内删除。
