12.7X11.5三层简约中式,挑空客厅+主人套房,适合农村自建!

12.7X11.5三层简约中式,挑空客厅+主人套房,适合农村自建!

----12.7X11.5三层简约中式 , 挑空客厅+主人套房 , 适合农村自建!//----

12.7X11.5三层简约中式,挑空客厅+主人套房,适合农村自建!

----12.7X11.5三层简约中式 , 挑空客厅+主人套房 , 适合农村自建!//----

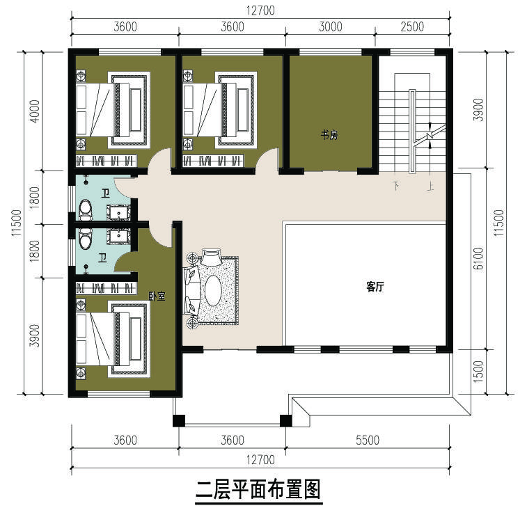
今天小编我给大家推荐的这款是一款三层的简约欧式风格的别墅 , 整体来说 , 建筑没有更多的线条 , 施工方便 , 造价也不会太高 , 非常适合农村自建 。

特别声明:本站内容均来自网友提供或互联网,仅供参考,请勿用于商业和其他非法用途。如果侵犯了您的权益请与我们联系,我们将在24小时内删除。