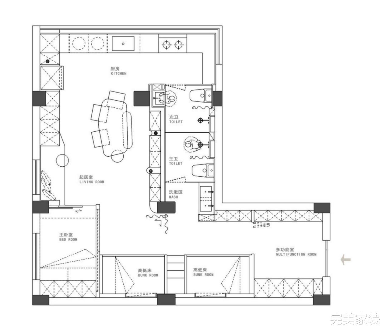
爆改杭州二手老房,50㎡住下8口人!完工就成为小区“网红房”!

文章图片

文章图片

文章图片

文章图片

文章图片

文章图片

文章图片

文章图片

文章图片

文章图片

文章图片

文章图片

文章图片

文章图片

文章图片

文章图片

文章图片

文章图片

文章图片

文章图片

文章图片
- 快手二手奢侈品入仓商户管理规范
- 陈亚男全家移居杭州,欲摆脱大衣哥影响,新房装修很豪华
- 一家3口挤33㎡“铁皮屋”,设计师爆改变“安乐窝”!令人感动!
- 她家花不到4万改造66平二手房,北欧风美爆了!网友:好想住进去
- 爆改39㎡小户型成2室2厅,打通小阳台太对了,多了个阳光小书房
- 套内58平米两居爆改三居。其实很简单!
- 杭州夫妻晒出456㎡别墅,全屋红木装修,这才称得上是惊艳
- 如何看待170斤东北女孩去杭州做模特?
- 化繁为简爆改85㎡小户型,整合空间优势,让家更“完美”
- 杭州二手车市场最大的二手车市场在哪里 杭州十大二手车交易市场
特别声明:本站内容均来自网友提供或互联网,仅供参考,请勿用于商业和其他非法用途。如果侵犯了您的权益请与我们联系,我们将在24小时内删除。
