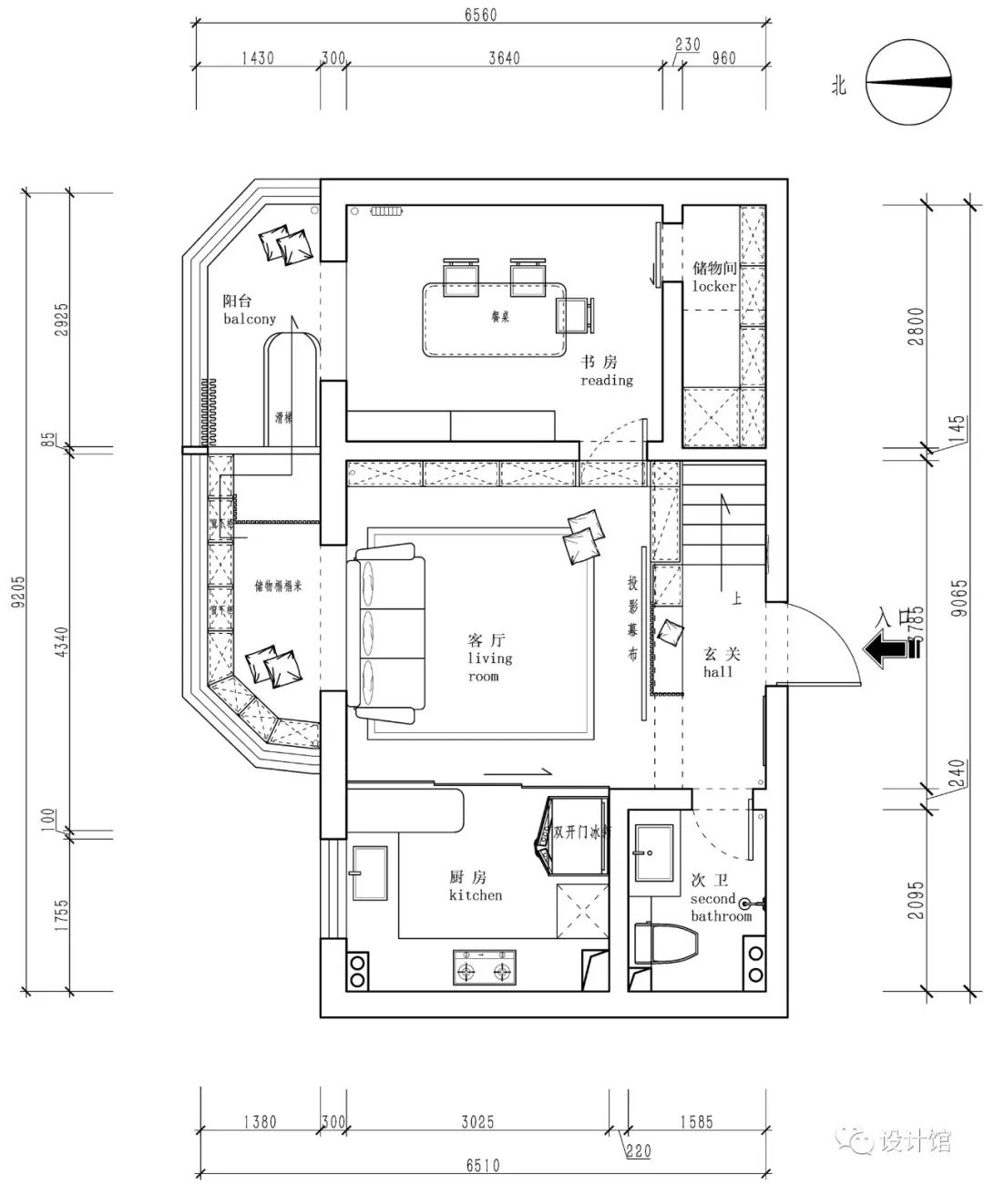
128㎡简约复式,就因阳台改成滑滑梯,邻家孩子来了都不肯走了

128㎡简约复式,就因阳台改成滑滑梯,邻家孩子来了都不肯走了

----128㎡简约复式 , 就因阳台改成滑滑梯 , 邻家孩子来了都不肯走了//----

128㎡简约复式,就因阳台改成滑滑梯,邻家孩子来了都不肯走了

----128㎡简约复式 , 就因阳台改成滑滑梯 , 邻家孩子来了都不肯走了//----

128㎡简约复式,就因阳台改成滑滑梯,邻家孩子来了都不肯走了

特别声明:本站内容均来自网友提供或互联网,仅供参考,请勿用于商业和其他非法用途。如果侵犯了您的权益请与我们联系,我们将在24小时内删除。