这是我见过最治愈的家!64㎡,全屋色调统一,氛围感溢出屏幕

文章图片

文章图片

文章图片

文章图片

文章图片

文章图片

文章图片

文章图片

文章图片

都说小户型在装修时 , 不需要追求太过华丽的效果 , 只要实用就行 。 因为在面积十分有限的情况下 , 根本就没有多余的空间 , 去做复杂的堆砌 。 事实上 , 空间效果和实用性是不冲突的 , 并且和户型面积也没有直接的关系 。
像本期带来的这套案例就是如此 , 虽说户型面积只有64㎡ , 但空间氛围感却都快溢出屏幕了 。 哪怕说这是我见过最治愈的家 , 都一点不过分 。 同时 , 实用性也丝毫不差 , 甚至还在两居室的基础上 , 实现了小三居的功能 , 真的非常巧妙 。
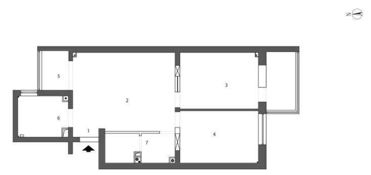
平面结构图
本案位于寸土寸金的北京 , 实用面积64㎡ , 两室一厅的格局 , 屋主是一对新婚小夫妻 。 对于新家的需求 , 屋主夫妇的考虑还是挺长远的 。 比如未来三年会升级成三口之家 , 所以随着居住成员的增加 , 储物空间一定要充足 。 同时 , 需要在原户型的基础上 , 满足留宿功能 , 但不能压缩空间 , 影响居住体验 。 当然 , 空间效果也要保证 , 并符合当下年轻人的审美 。
平面方案图
结合屋主的需求 , 以及这是一套老房 , 空间布局调整如下
1、进门左侧增加鞋柜 , 并通过大面积镜面移门 , 提高空间的采光及通透性 。
2、北面小阳台改成功能区 , 满足日常休闲以及偶尔的留宿需求 。
3、卫生间干区向次卧扩大 , 延伸出一块台盆区的空间 。
4、主卧与客厅之间采用双面柜隔断 , 提高空间的储物能力 , 并将南阳台纳入室内 。
入户
对于小户型来说 , 最重要的就是空间面积利用了 。 所以哪怕入户门旁边的墙体 , 只有49公分宽 , 也依然设计了一组到顶的鞋柜 。 柜体底部悬空 , 方便进门收纳鞋子;中间位置镂空 , 方便钥匙、包包的收纳 。
同时 , 低饱和度的柜体饰面 , 以及取消柜门拉手这个处理 , 也与奶咖色的墙面形成层次反差的情况下 , 做到了简约、利落 。
餐厅
入户第一视角 , 放弃常规的白色乳胶漆 , 并给墙顶面刷上低饱和度的奶咖色乳胶漆 , 不仅一进门就营造出了治愈的气息 , 也凸显出了细腻的质感 。
而在客餐厅一体化的情况下 , 选择一张黑色的方桌贴着沙发摆放 , 既起到了节省面积的作用 , 又强化了空间的互动性 。 同时 , 在咖色的衬托下 , 还有了一丝高级、时尚的格调 。
- 增味剂|你买过吗?酱油瓶上有这4个字,赶紧放下!再便宜也别买…
- 如果家里这3处地方不放地垫,再勤搞卫生也是脏,千万别不当回事
- 误打误撞装对了这33个细节,邻居串门看到连连称赞道:太实用了
- 断舍离之后,我扔掉了这些网红家居品!
- 收纳空间不足?这些地方装柜子,空间至少扩大1倍
- 两层带五个房间的小别墅,面宽不到10米,小户型这样建很好看
- 建议大家:若经济条件允许,在客厅添置这3个好物,提升生活幸福感
- 阳台不晒衣服、不种花,打算用来养鱼?这4点不注意,你还是外行
- 日本这些“走心”的家居用品,看似平平无奇,用后却离不开了
- 三航|从浦东到奉贤 这条跨"两区三镇四村"的S3厉害了
特别声明:本站内容均来自网友提供或互联网,仅供参考,请勿用于商业和其他非法用途。如果侵犯了您的权益请与我们联系,我们将在24小时内删除。
