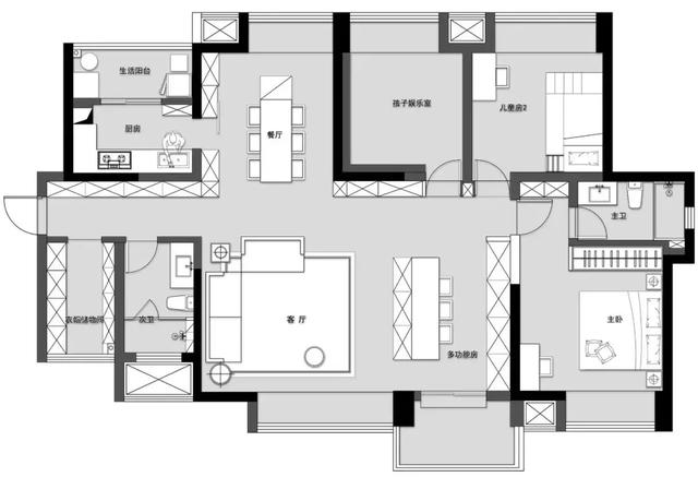
邻居花18万装修的135平米现代简约风格,比我家20万的都好!

邻居花18万装修的135平米现代简约风格,比我家20万的都好!

----邻居花18万装修的135平米现代简约风格 , 比我家20万的都好!//----

邻居花18万装修的135平米现代简约风格,比我家20万的都好!

----邻居花18万装修的135平米现代简约风格 , 比我家20万的都好!//----

邻居花18万装修的135平米现代简约风格,比我家20万的都好!

特别声明:本站内容均来自网友提供或互联网,仅供参考,请勿用于商业和其他非法用途。如果侵犯了您的权益请与我们联系,我们将在24小时内删除。