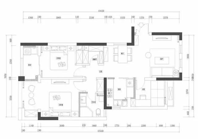
98平美式风小三房,卡座餐厅加榻榻米书房

98平美式风小三房,卡座餐厅加榻榻米书房

----98平美式风小三房 , 卡座餐厅加榻榻米书房//----

98平美式风小三房,卡座餐厅加榻榻米书房

----98平美式风小三房 , 卡座餐厅加榻榻米书房//----

98平美式风小三房,卡座餐厅加榻榻米书房

特别声明:本站内容均来自网友提供或互联网,仅供参考,请勿用于商业和其他非法用途。如果侵犯了您的权益请与我们联系,我们将在24小时内删除。