|117㎡现代简约风,经典高级灰,点亮生活格调!

文章图片

文章图片

文章图片

文章图片

文章图片
本期分享一套现代简约风 , 业主本人特别喜欢色彩平静的内饰设计 , 所以在她的设计项目中灰白是主色 , 沉静温馨 。
案例信息
【设计面积】117㎡
【设计风格】现代简约
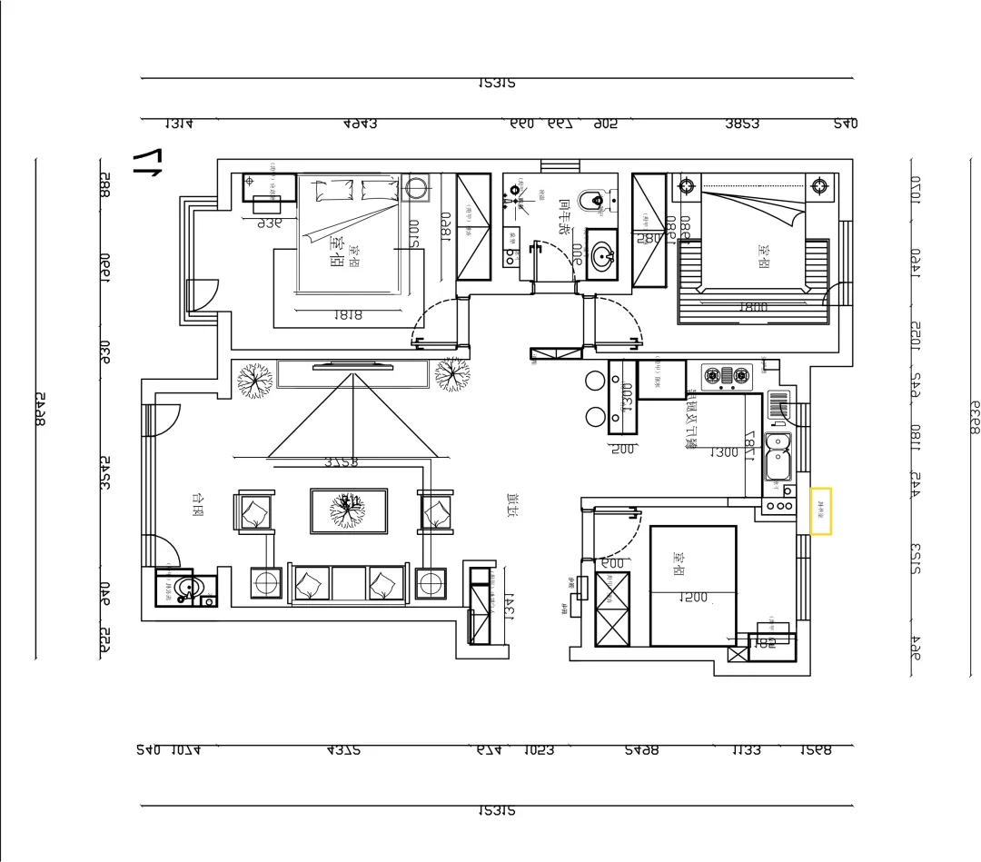
平面布置图
【布局改动】
- 玄关背靠客厅新建部分墙体内嵌玄关柜 , 扩大玄关储物空间;
- 餐厅靠墙新建部分墙体 , 阻挡卫生间与大门直冲 , 也增加了餐厅的空间 。
▲在客厅风格定位和选材上 , 注重把舒适体验放在首位 , 地面通铺灰色瓷砖 , 也强调了功能的多样化 , 这也是一个能让人安静下来的生活空间 。
▲把阳台规划入客厅 , 让公共区域更加宽广 。 引入自然光 , 让整个室内充满阳光的气息 。
▲电视背景墙摈弃了繁复的墙面造型 , 选择通过材质的对比运用丰富空间层次 。
▲客厅餐厅厨房连接在一起 , 让空间价值实现最大化 。
餐厅
▲餐厨灰白色搭配 , 简约、素雅而静谧 , 在灰色的主调下 , 设计师通过搭配少许金属材质点缀加以灯光的辅助 , 让空间呈现出温馨氛围 。
主卧
▲深灰色衣柜嵌入墙体 , 床头原木半墙装饰搭配灯光静谧素雅 , 几何挂画打破空间的单调 , 原木色地板与床品、床头柜色彩一致 , 引入自然气息 。
次卧
▲次卧将“素雅”贯彻 , 从居者的角度来选取色彩与形制 , 减少陈设的构成元素 , 白色往往会给人带来柔和、干净的感觉 , 再加上半墙藕粉色装饰 , 自然日光透过窗随意的洒在室内的每一处 , 更为空间增添一份生活的惬意与美好 。
卫生间
墙面、地面由同款石材一体而成
置入镜面和木质柜体
简洁之中恰到好处的融合与均衡
【|117㎡现代简约风,经典高级灰,点亮生活格调!】▲壁龛设计实用美观 , 马桶上方浴室柜延伸出台面可做收纳 , 摆放装饰也是很好看的 。
特别声明:本站内容均来自网友提供或互联网,仅供参考,请勿用于商业和其他非法用途。如果侵犯了您的权益请与我们联系,我们将在24小时内删除。
