
文章图片

文章图片

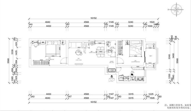
入户左侧做了一个整体的柜子 , 可储物 , 做鞋柜 。 客厅区域的 , 整体布局较简单 。 餐厅区域 , 业主需要多些储物空间 , 所以餐厅区域加了酒柜 。 整体空间方正 , 没有异形 , 次卧室有阳台 , 业主用于储物或休闲区域都可以 。 主卧室的采光性好很好 , 主次卧房间的通风都很好 。 厨房区域利用空间最大合理化 , 做成L型造型 , 不浪费任何空间 。 卫生间区域整体不算太大 。 整体来说两间卧室及厨房的房型还很好 , 卫生间跟客餐厅就差点 。
客厅几乎就是家具、背景墙简单的组合就可以了 。 墙面装饰的种类很多 , 比如有壁纸、硅藻泥、乳胶漆等等 , 每个人喜欢的风格不同 , 所以在选择上可以根据个人喜好决定 。
客厅墙面是白色乳胶漆;客厅的电视背景墙是灰色乳胶漆 , 客厅、过道及两间卧室为石膏线圈边 。
客厅用的木材都选用胡桃木 , 比较统一 , 客厅选用的吸顶灯 , 房顶较低所以吸顶灯会给人舒服的感觉 , 剩下的灯都选用北欧风格 。
卧室的装修并非只是摆设一张床这么简单的事情 , 在卧室装修中 , 有很多需要注意的地方 。 现在的卧室 , 室内功能越来越完善 , 舒适度也越来越高 , 基本可以满足主人的任何生活需求 。
主卧室选择金属与白色烤漆相配的书桌 , 比较清新、干净的感觉 , 挂画也是选择业主比较喜欢的鹿为主 , 主卧室窗帘与床相搭配 。
次卧室有一面墙选择灰色 , 床品也是为了搭配墙面颜色 , 次卧室的挂画为绿植显得有生气 。
【形式主义|55平简约现代风二居室,是你希望的那个宽敞明亮的房子吗】户型:两室两厅一厨一卫两房两厅 , 一厨一卫 , 面积不大 , 整体很满 。 房间的整体为现代简约风格 。
特别声明:本站内容均来自网友提供或互联网,仅供参考,请勿用于商业和其他非法用途。如果侵犯了您的权益请与我们联系,我们将在24小时内删除。
