
文章图片

文章图片

文章图片

文章图片

文章图片

文章图片

文章图片

文章图片
本期 , 甜茶为大家分享的是一套面积约48㎡的老房改造案例 。 这套房子位于顶楼 , 上方不是普通的平面天花板 , 而是三角形斜坡屋顶 , 整体感较差 。 想要提升居住的舒适度和空间利用率 , 就需要对房子进行重新规划改造 。
顶楼老房 , 听起来就像百里挑一的「烂户型」 , 可是本期女主偏偏对它一见钟情 , 执意买下这套房 , 来看看她是如何改造的吧!
▲装修实拍图//设计亮点//
屋主是一家三口 , 平时偶尔会有双方父母来家住 , 所以至少要保证三间卧室 。 设计师在了解屋主的家庭情况后 , 根据户型现状 , 做出了如下改造:
①借助层高优势 , 增加二层阁楼 , 这样可以增加儿童房、活动室、储物间;
②入户玄关改做厨房 , 提升空间利用率;
③取消客厅 , 改做次卧客房 , 增加功能性 。
▲一楼装修平面图
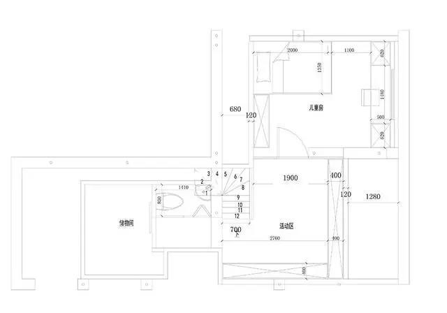
▲二楼装修平面图玄关:改做厨房 , 小巧精致入户玄关有一段狭长的空间 , 设计师直接把它改为了厨房 。 白色的橱柜 , 搭配黑色的大理石台面 , 简约清爽易打理 。 吊柜的比橱柜稍微薄一点 , 这样看起来会比较轻盈 , 减少压抑感 。 吊柜的下方还安装了隐形灯带 , 作为厨房灯光的补充 , 可提升台面区域的照明 。
▲玄关厨房实拍图橱柜预留出空间 , 嵌入洗衣机和冰箱 , 不浪费一点空间 。 玄关厨房的地面 , 贴了灰白相间的花砖 , 与室内的木地板相区分 , 更耐脏耐磨 。
▲玄关厨房实拍图餐厅:卡座+嵌入式餐边柜 , 更节省空间
穿过玄关 , 就来到了餐厅区域 , 它的面积也比较小 , 所以做了卡座和嵌入式餐边柜的设计 。 白色的餐边柜与墙面完美衔接 , 看起来非常整洁 , 毫无违和感 。 柜子的中间做开放式设计 , 内嵌隐藏式灯带 , 方便屋主随手放置一些小物品 。
▲餐厅实拍图卡座和餐椅相比 , 可以容纳更多人 , 而且内部也有一定的储物空间 , 非常实用 。
▲餐厅实拍图在餐厅灯饰的选择上 , 设计师用了吊灯和灯带 , 光源更丰富 , 有效减少照明死角 。 卡座的上方 , 做了一组嵌入式灯带 , 给人的感觉就像是开了一扇天窗 , 很有趣味性 。
▲餐厅实拍图一楼主卧:晾晒区+衣帽间 , 功能丰富
一楼的主卧面积比较大 , 而且还带一个阳台 , 于是设计师在卧室内增加了衣帽间和晾晒区 , 并用窗帘做隔断 , 轻盈通透 。 卧室内的照明设置也很丰富 , 除了吊灯、筒灯外 , 还增加了灯带和床头灯 。
- 常做几个小动作更养生 这十个养生小动作坚持做有益健康
- 就为20㎡小院,坚持买203㎡底楼复式,完工变简约小豪宅,真值!
- 晒晒我家的田园风,住4年坚持每天打扫干净,厨房墙上开窗最明智
- 拍美女人像,怎么把她拍的又瘦又高呢
- 她家78㎡两居室,耐看又实用,等以后买房了就照着装
- 大学生怎样才能坚持每天锻炼
- 学她家这样“穷装修”,既美观又省钱,邻居看了都羡慕
- 新房装好,邻居看一眼就急了,吵着回家重新装,说我家大她20平方
- 越来越多人不吊顶,不做背景墙,看看她家,明亮宽敞,以后照着装
- 她家125㎡新房,因客厅设计走红网络,好看又实用,晒晒!
特别声明:本站内容均来自网友提供或互联网,仅供参考,请勿用于商业和其他非法用途。如果侵犯了您的权益请与我们联系,我们将在24小时内删除。
