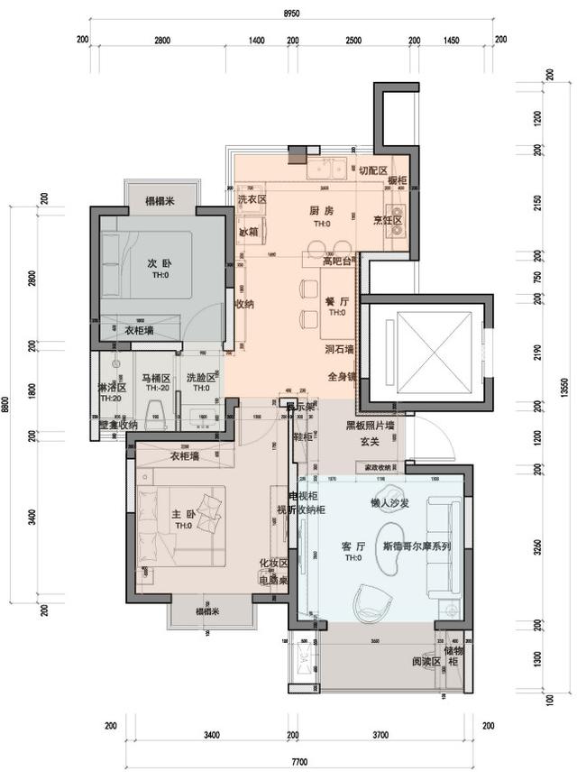
65㎡蜗居,这6处改造后原地多出30㎡

65㎡蜗居,这6处改造后原地多出30㎡

----65㎡蜗居 , 这6处改造后原地多出30㎡//----

65㎡蜗居,这6处改造后原地多出30㎡

----65㎡蜗居 , 这6处改造后原地多出30㎡//----

65㎡蜗居,这6处改造后原地多出30㎡

特别声明:本站内容均来自网友提供或互联网,仅供参考,请勿用于商业和其他非法用途。如果侵犯了您的权益请与我们联系,我们将在24小时内删除。