
文章图片

文章图片

文章图片

文章图片

文章图片

文章图片

文章图片

文章图片

文章图片

文章图片

文章图片
本期为大家分享的家装案例 , 就是一套令人头疼的“奇葩户型” 。 它的整体格局不够方正 , 还带了一个“斜切角” , 让原本已经很小的空间 , 被分隔更加琐碎了 。 不过 , 经过设计师的一番改造后 , 完美诠释了什么叫做:户型虽差 , 也能享受优雅体面的生活!
买房子最怕遇到奇葩户型 , 然而却躲不过开发商的“剑走偏锋” , 不断刷新购房者的审美观 。 尤其是斜角房间 , 利用难度较大 , 很容易造成空间浪费 , 装修设计时可得好好下一番功夫了!
【78㎡奇葩户型,逆袭“高级家”,细节设计妙不可言,值得学习!】
▲装修实拍图//户型分析//
户型使用面积约78㎡ , 属于紧凑型三房 。 主要存在以下几个缺陷:
①玄关狭长 , 空间利用率低 , 且采光较差;
②每间卧室的面积都很小 , 尤其是入户旁的卧室还有斜角面 , 体验较差;
③客厅电视背景墙 , 不在同一个水平面 , 视觉效果不佳 。
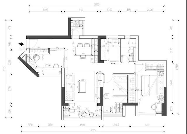
▲原始户型图//设计亮点//
为了提高屋主居住的舒适度 , 同时提升空间利用率 , 设计师对户型格局做了以下调整:
①入户玄关借用一部分次卧空间 , 做嵌入式收纳柜;并将入户次卧隔墙改为玻璃隔断 , 提升玄关采光;
②客厅做整墙电视柜 , 弥补墙面不齐的缺陷 , 同时增加收纳能力;
③主卧借用相邻次卧的面积 , 做满墙衣柜 , 提升主卧空间感 。
▲装修平面图||长廊式玄关 , 简洁清新
原始的玄关空间 , 狭长且采光不好 。 为了解决这些问题 , 设计师通过配色和灯光设置 , 玄关进行改造 。 玄关区域的色调以纯白为主 , 地面铺设了黑白灰相间的六边形小砖 , 与室内木地板完美衔接 , 丰富了空间层次 。
▲玄关实拍图次卧的隔墙改为玻璃隔断后 , 将更多的光线引入玄关 , 同时设计师还在玄关内安装筒灯和隐藏式灯带 , 作为自然光的补充 , 给人一种很敞亮的感觉 。 灯带藏在入户玄关柜内 , 可提升局部氛围感 , 也方便屋主日常拿取鞋子 。
- 75平米小户型这样装修很耐看,高级酒店的风格设计
- 48平方米的小户型,装修设计效果只能用豪华和实用来形容
- 有钱人的家就是不一样!167㎡带超大露台,站上面能俯瞰城市全景
- 66㎡小户型新房,全屋贴满红砖,朴实无华,却又复古迷人
- 沙漠中发现一小伙27㎡的家,那叫一个精致实用,一点不逼仄
- 同样是50㎡房子,我家是蜗居,她家却是「高级小墅」,晒晒!
- 180㎡现代简约丨华丽典雅,打造惬意的家居生活空间!
- 122㎡现代轻奢,黄配金空间,端庄与高贵碰撞,温馨又大气!
- 180㎡的大宅,他只改造客厅和卧室,完工后,高级藏都藏不住了
- 广西夫妻200㎡的家,因为奢华的美式风格走红,全屋堪称完美!
特别声明:本站内容均来自网友提供或互联网,仅供参考,请勿用于商业和其他非法用途。如果侵犯了您的权益请与我们联系,我们将在24小时内删除。
